Riferimento annuncio 45556
        info
    
    Fabbricato rurale 09034 Villasor SU, Italia, 09034 Villasor (SU)
                
                121800,00
            
            
                
                0
            
        
€ 304.700    
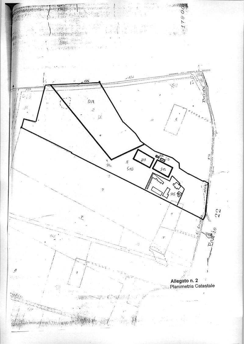
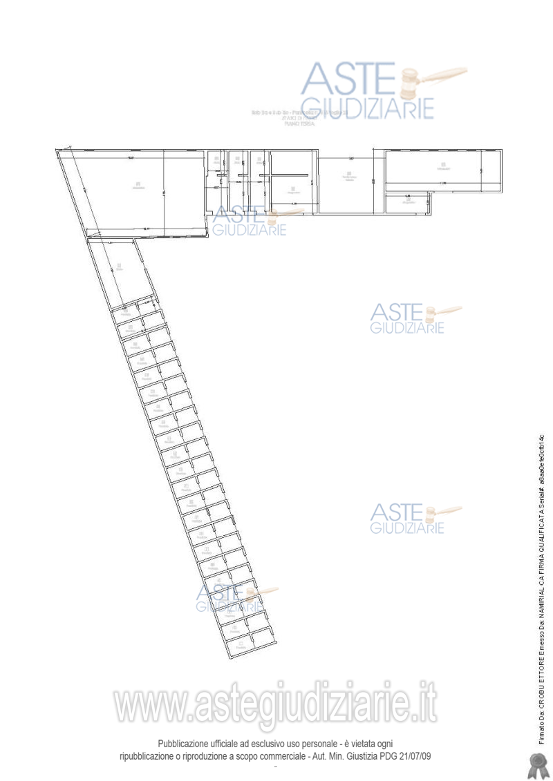
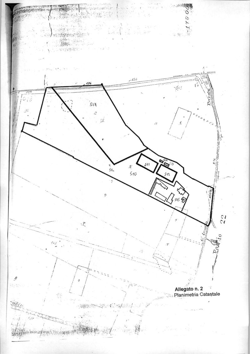
                Vendita all'asta Senza incanto, con gara telematica asincrona - LOTTO UNICO:  Loc. Su Pardu, quota pari all’intero del diritto di proprietà dell’azienda agricola ad indirizzo orticolo-cerealicolo in area pianeggiante, composta da area di complessivi mq.121800 con sovrastanti fabbricati (due fabbricati per civile abitazione, magazzini-fienili con annessa porcilaia, magazzino -sala lavorazione – celle frigo, stalle, sala controllo, cabine pozzo, serre, semenzaio). Prezzo base € 304.700,00 (offerta minima € 228.525,00). Data inizio operazioni di vendita: 19/12/2025 ore 09:00. Giudice Flaminia Ielo. Professionista delegato alla vendita Dott. Antonio Garau - Email "ufficiouniconotai@pec.it"; Tel. 07060222574. Custode Giudiziario  Ivg Cagliari - Email "ivg.visiteimmobili@tiscali.it"; Tel. 0702299036.  Rif. Tribunale di Cagliari - Esecuzione immobiliari n. 183/2004
            
   
| Superficie | 121800,00 mq | 
|---|---|
| Vani | |
| Bagni | |
| Piano | 0 | 
| Tipologia di vendita | Giudiziaria | 
|---|---|
| Modalità di vendita | Asincrona telematica | 
| Termine presentazione offerte | 01/01/1900 ore 00:00 | 
| Data e ora inizio gara | 19/12/2025 ore 09:00 | 
 
                         
                         
                         
                         
                         
                         
                         
                         
                         
                         
                         
                         
                         
                         
                         
                         
                         
                         
                         
                         
                         
                         
                         
                         
                         
                         
                         
                         
                         
                         
                         
                         
                         
                         
                         
                         
                         
                         
                         
                         
                         
                         
                         
                         
                         
                         
                         
                         
                         
                         
                         
                         
                         
                         
                         
                         
                         
                         
                         
                         
                         
                         
                         
                         
                         
                         
                         
                         
                         
                         
                         
                         
                         
                         
                         
                         
                         
                         
                         
                         
                         
                         
                         
                         
                         
                         
                         
                         
                         
                         
                         
                         
                         
                         
                         
                         
                         
                         
                         
                         
                         
                         
                         
                         
                         
                         
                         
                         
                         
                         
                         
                         
                         
                         
                         
                         
                         
                         
                         
                         
                         
                         
                         
                         
                         
                         
                         
                         
                         
                        