highlight_off
Riferimento annuncio 277747 info

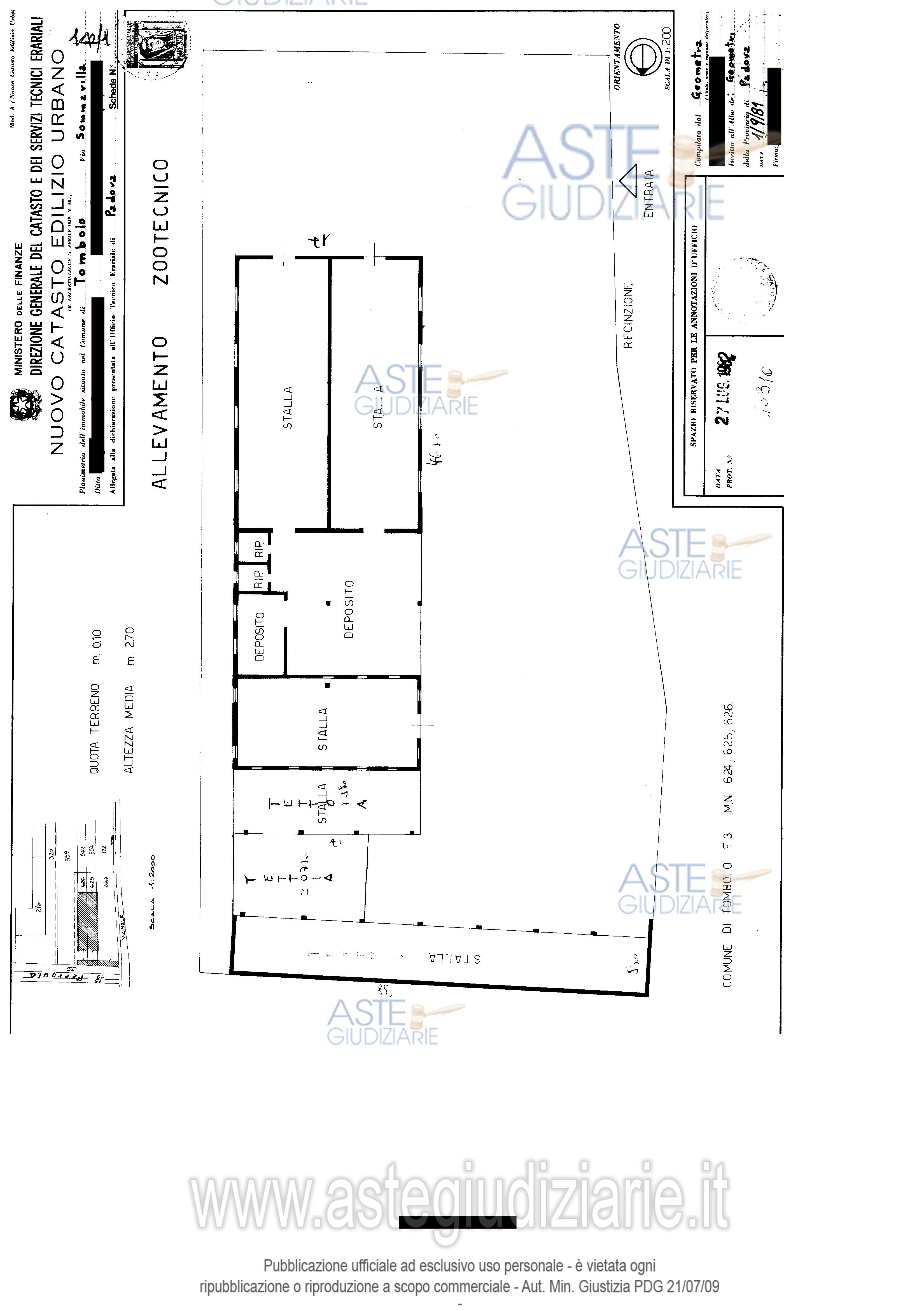
Fabbricato rurale Via Sommavilla 71/A, 35019 Tombolo (PD)

€ 160.000
Vendita all'asta Senza incanto, con gara telematica sincrona - LOTTO 2: Complesso rurale costituito da un corpo principale in muratura contenente 3 stalle, depositi e ripostigli, oltre 5 tettoie, due silos ed un piccolo fabbricato contenente una cisterna di gasolio. Lo. Prezzo base € 160.000,00 (offerta minima € 120.000,00). Data vendita 25/05/2026 ore 14:30. Giudice: Paola Rossi. Professionista delegato alla vendita: Avv. Laura Grasselli - Email "laura@studiolegalegrasselli.com". Custode Giudiziario: Laura Grasselli - Email "laura@studiolegalegrasselli.com"; Tel. 049/2050581. Rif. Tribunale di Padova - Esecuzione immobiliare post legge 80 n. 290/2022

Tipologia di vendita Giudiziaria
Modalità di vendita Sincrona telematica
Termine presentazione offerte 01/01/1900 ore 00:00
Data e ora inizio gara 25/05/2026 ore 14:30
Codice ID astegiudiziarie.it 4306534
€ 160.000

Ti interessa questa vendita?

north_east

Clicca qui per essere indirizzato alla scheda sul sito di provenienza

Bene di astegiudiziarie.it