highlight_off
Riferimento annuncio 48014 info

Fabbricato rurale VIA CONTRADA FALANGONE 30/5, 80047 San Giuseppe Vesuviano (NA)

€ 9.000
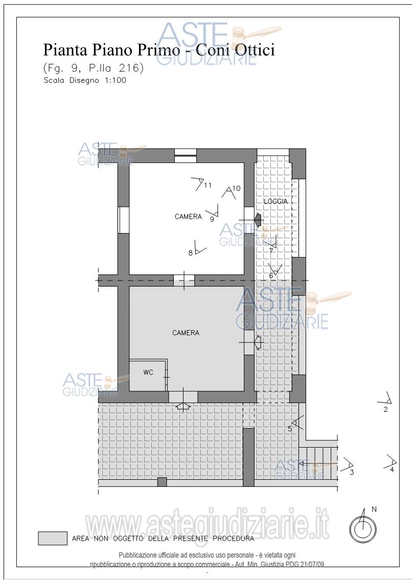
Vendita all'asta Senza incanto - LOTTO UNICO: Unico locale, al quale si accede da una scala di pietra esterna, con antistante una piccola porzione di ballatoio e con sovrastante una porzione di tetto. Tale locale, in condizioni fatiscenti, privo di servizi igienici, è attualmente occupato dal debitore che lo ha adibito a propria abitazione. Prezzo base € 9.000,00 (offerta minima € 6.750,00). Data vendita 29/05/2026 ore 09:30. Professionista delegato alla vendita: Avv. Nicoletta Mazza - Email "nicolettamazza@hotmail.it". Custode Giudiziario: Avv. Nicoletta Mazza - Email "nicolettamazza@hotmail.it". Rif. Tribunale di Nola - Esecuzione immobiliare n. 75/2015

Tipologia di vendita Giudiziaria
Modalità di vendita Presso il venditore
Termine presentazione offerte 01/01/1900 ore 00:00
Data e ora inizio gara 29/05/2026 ore 09:30
Codice ID astegiudiziarie.it 2784109
€ 9.000

Ti interessa questa vendita?

north_east

Clicca qui per essere indirizzato alla scheda sul sito di provenienza

Bene di astegiudiziarie.it