highlight_off
Riferimento annuncio 279183 info

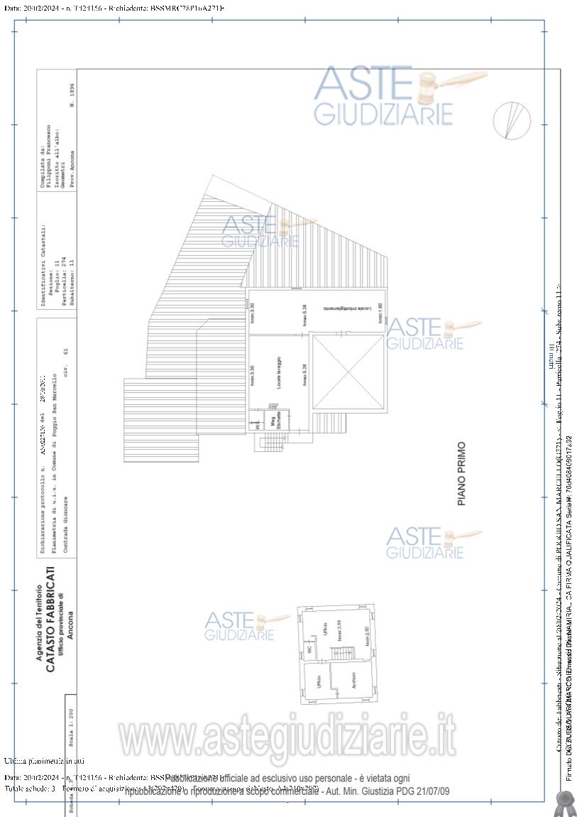
Fabbricato rurale Contrada Gioncare, Poggio San Marcello AN, Italia, 60030 Poggio San Marcello (AN)

710680,26
0
€ 661.214
Vendita in attesa dell'emissione del nuovo bando d'asta. LOTTO UNICO: Lotto unico composto da n. 15 beni immobili tra cui fabbricati rurali e terreni siti in Contrada Gioncare e Contrada Zaffaranara. Ultimo prezzo base € 661.213,73 (offerta minima € 495.910,30). Professionista delegato alla vendita Avv. Andrea Coen. Custode Giudiziario Avv. Federica Manzotti - Email "fm@studiomanzotti.net"; Tel. 07156635. Rif. Tribunale di Ancona - Esecuzione immobiliare post legge 80 n. 194/2022

Superficie 710680,26 mq
Vani
Bagni
Piano 0

Tipologia di vendita Giudiziaria
Modalità di vendita Asincrona telematica
Termine presentazione offerte 01/01/1900 ore 00:00
Data e ora inizio gara 17/06/2025 ore 09:15
Codice ID astegiudiziarie.it 4307730
710680,26
0
€ 661.214

Ti interessa questa vendita?

north_east

Clicca qui per essere indirizzato alla scheda sul sito di provenienza

Bene di astegiudiziarie.it