highlight_off
Riferimento annuncio 328668 info

Fabbricato rurale Via degli Scogli, 51, 34170 Gorizia GO, Italia, 34170 Gorizia (GO)

211,90
€ 125.800
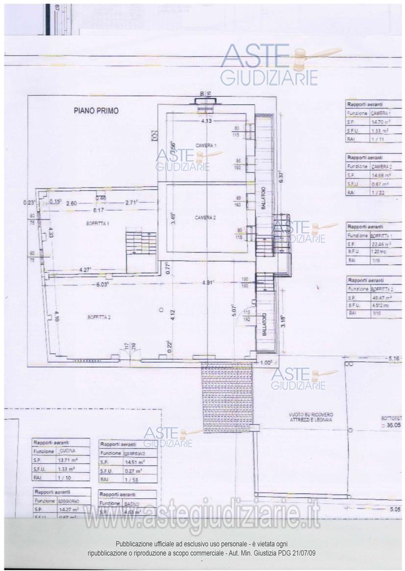
Vendita all'asta Senza incanto, con gara telematica sincrona mista - LOTTO UNICO: trattasi di casa rurale, sita in Gorizia, via degli Scogli 51, della superficie commerciale di 211,69 mq, nonché di fondi attigui della superficie complessiva di 6.386 mq. Prezzo base € 125.800,00 (offerta minima € 94.350,00). Data vendita 16/06/2026 ore 10:30. Professionista delegato alla vendita: Avv. Sebastiano Markovic - Email "sebastiano.markovic@gmail.com"; Cell. 340/1504042. Custode Giudiziario: Avv. Sebastiano Markovic - Email "sebastiano.markovic@gmail.com"; Cell. 340/1504042. Rif. Tribunale di Gorizia - Contenzioso civile n. 611/2024

Superficie 211,90 mq
Vani
Bagni
Piano

Tipologia di vendita Giudiziaria
Modalità di vendita Sincrona mista
Termine presentazione offerte 01/01/1900 ore 00:00
Data e ora inizio gara 16/06/2026 ore 10:30
Codice ID astegiudiziarie.it 4346952
211,90
€ 125.800

Ti interessa questa vendita?

north_east

Clicca qui per essere indirizzato alla scheda sul sito di provenienza

Bene di astegiudiziarie.it