highlight_off
Riferimento annuncio 285728 info

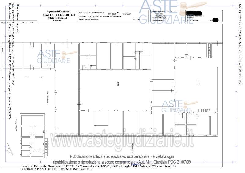
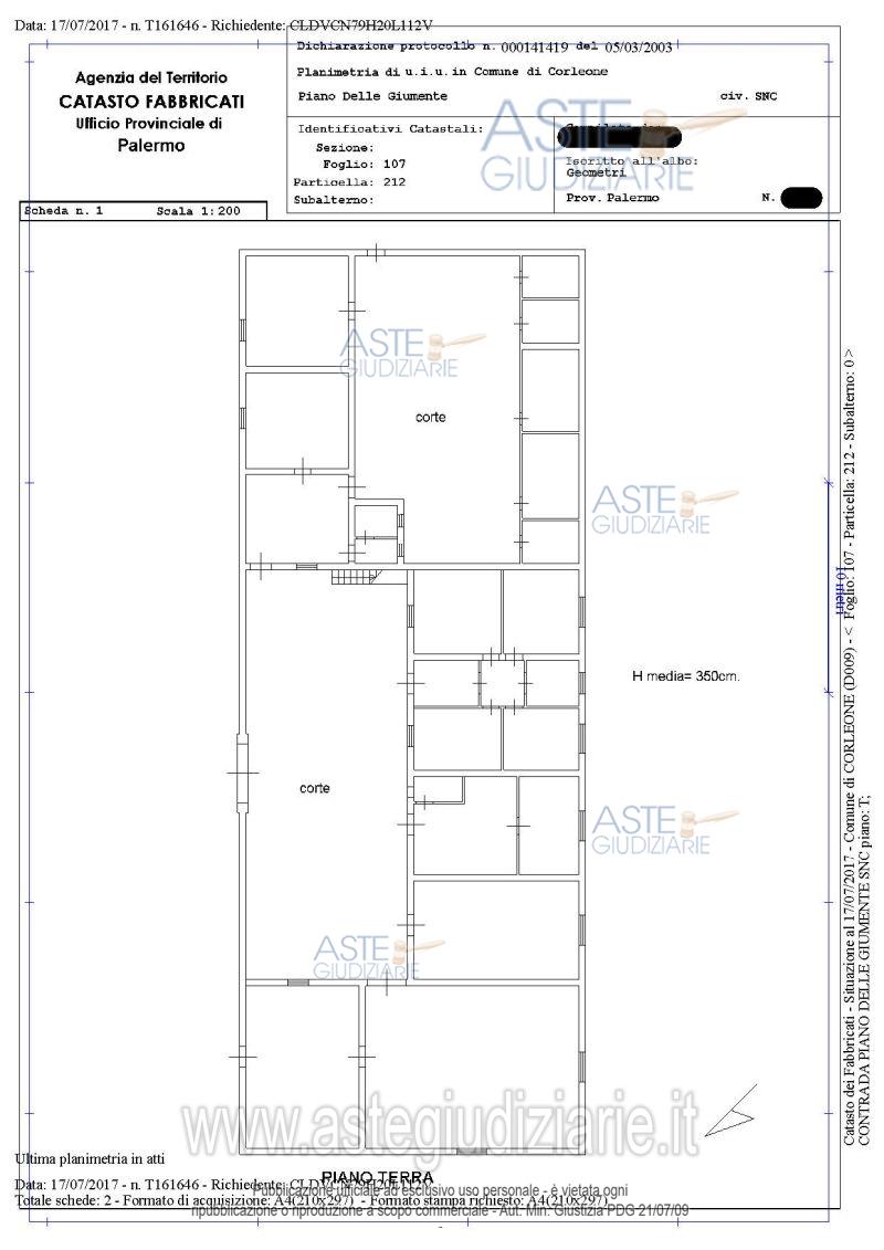
Fabbricato rurale contrada Terre della Giumenta ovvero Piano delle Giumente, 90034 Corleone (PA)

€ 883.223
Vendita all'asta Senza incanto, con gara telematica sincrona - LOTTO UNICO: compendio immobiliare composto da fondi rustici e fabbricati rurali sito tra il Comune di Corleone (Pa) e Campofiorito (Pa), contrada “Terre della Giumenta” ovvero “Piano delle Giumente”. Prezzo base € 883.222,50 (offerta minima € 662.416,88). Data vendita 16/12/2025 ore 09:30. Professionista delegato alla vendita Avv. Davide Garretto - Email "avv.garretto.aste@virgilio.it". Custode Giudiziario Avv. Davide Garretto - Email "avv.garretto.aste@virgilio.it". Rif. Tribunale di Termini Imerese - Esecuzione immobiliare post legge 80 n. 64/2017

Tipologia di vendita Giudiziaria
Modalità di vendita Sincrona telematica
Termine presentazione offerte 15/12/2025 ore 17:00
Data e ora inizio gara 16/12/2025 ore 09:30
Codice ID astegiudiziarie.it 4312949
€ 883.223

Ti interessa questa vendita?

north_east

Clicca qui per essere indirizzato alla scheda sul sito di provenienza

Bene di astegiudiziarie.it