highlight_off
Riferimento annuncio 311184 info

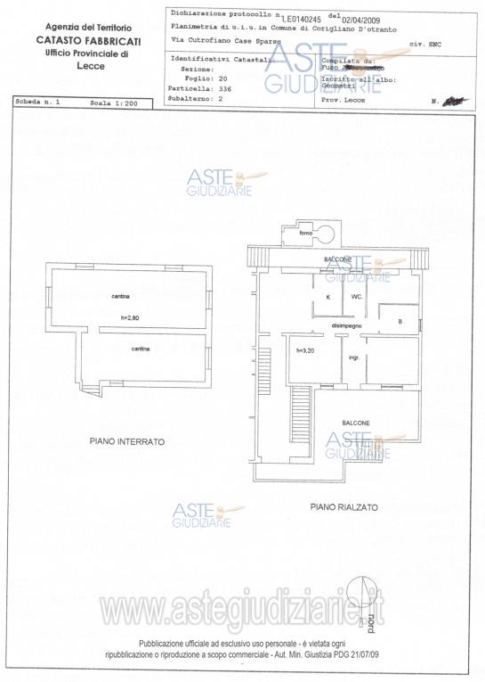
Fabbricato rurale via S.P. per Cutrofiano, civ.118/120., 73022 Corigliano d'Otranto (LE)

€ 55.744
Vendita all'asta Senza incanto, con gara telematica asincrona - LOTTO UNICO: Piena proprietà per la quota di 1000/1000 di Fabbricato rurale destinato a Civile abitazione in Corigliano d’Otranto (LE) – via S.P. per Cutrofiano, civ.118/120. Prezzo base € 55.744,00 (offerta minima € 41.808,00). Data inizio operazioni di vendita: 21/07/2026 ore 15:30. Professionista delegato alla vendita: Dott. Carlo Gabrieli - Email "studio.carlogabrieli@gmail.com"; Cell. 329/5697151. Custode Giudiziario: Dott. Carlo Gabrieli - Email "studio.carlogabrieli@gmail.com"; Cell. 329/5697151. Rif. Tribunale di Lecce - Espropriazione immobiliare (cartabia) n. 174/2024

Tipologia di vendita Giudiziaria
Modalità di vendita Asincrona telematica
Termine presentazione offerte 01/01/1900 ore 00:00
Data e ora inizio gara 21/07/2026 ore 15:30
Codice ID astegiudiziarie.it 4332682
€ 55.744

Ti interessa questa vendita?

north_east

Clicca qui per essere indirizzato alla scheda sul sito di provenienza

Bene di astegiudiziarie.it