highlight_off
Riferimento annuncio 292521 info

Fabbricato rurale Str. Coasso, 36, 10073 Ciriè TO, Italia, 10073 Ciriè (TO)

285,00
1
€ 117.832
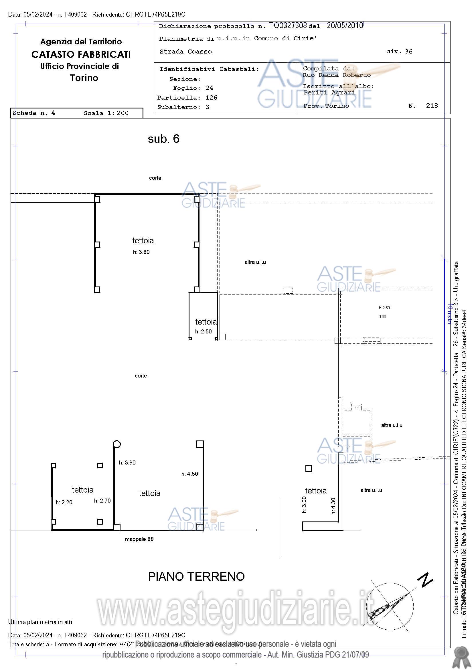
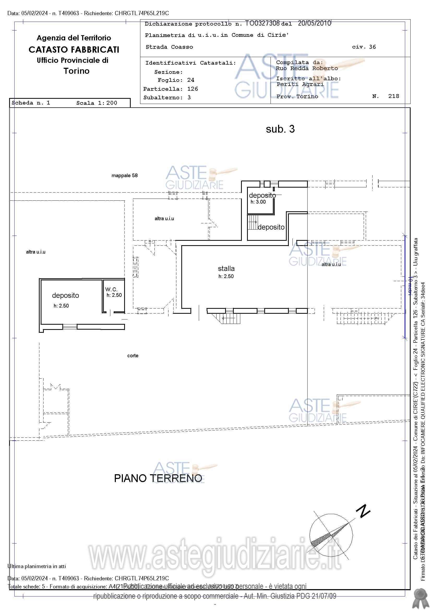
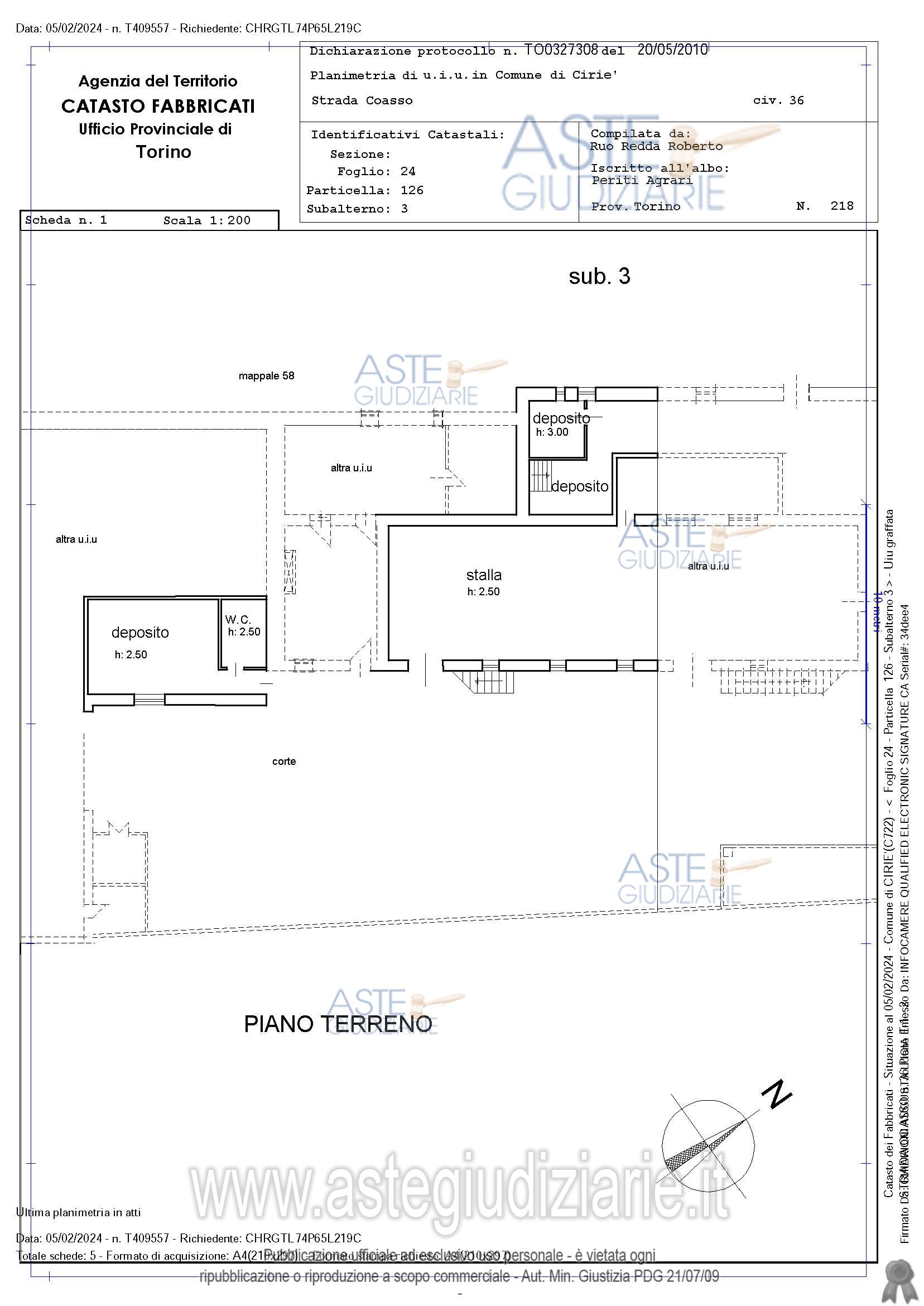
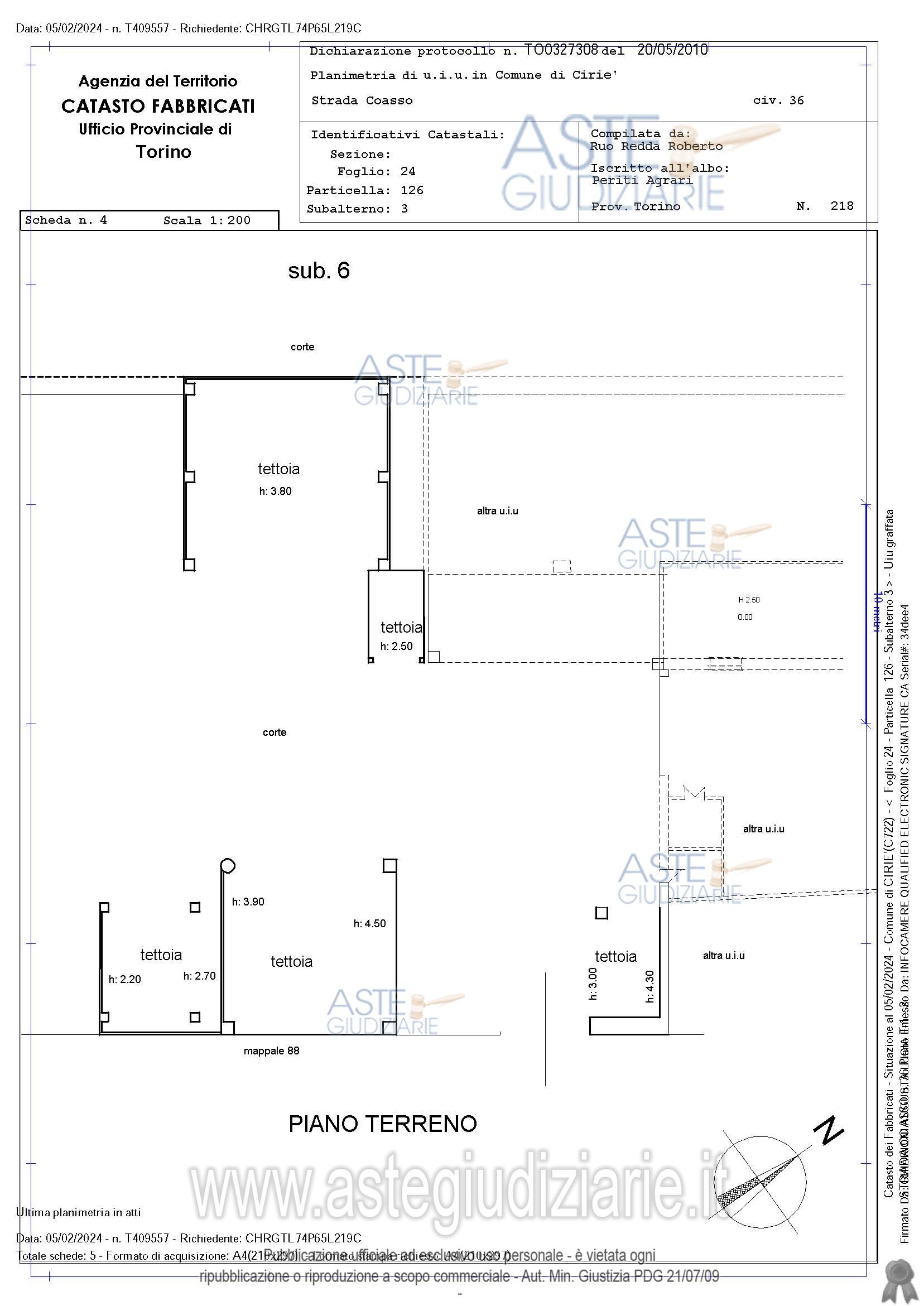
Vendita all'asta Senza incanto, con gara telematica asincrona - LOTTO 1: Porzione di cascina che si articola in un edificio principale, a 2 p.f.t. costituita da una casa rurale ad uso civile abitazione, una stalla, il fienile ed i cosiddetti “teppu” ovvero le tettoie per il ricovero degli attrezzi, i fabbricati pertinenziali ed accessori all'attività agricola il tutto entro stante area a cortile di 3069 metri quadrati circa. Prezzo base € 117.832,00 (offerta minima € 88.374,00). Data inizio operazioni di vendita: 27/01/2026 ore 10:00. Professionista delegato alla vendita Dott. Carlo Della Chiesa Poma - Email "cdcp_01@libero.it"; Cell. 3386041366; Tel. 0114407808. Custode Giudiziario Dott. Carlo Della Chiesa Poma - Email "studio.dcpm@libero.it"; Cell. 3386041366; Tel. 0114407808. Rif. Tribunale di Ivrea - Espropriazione immobiliare (cartabia) n. 214/2023

Superficie 285,00 mq
Vani
Bagni 1
Piano

Tipologia di vendita Giudiziaria
Modalità di vendita Asincrona telematica
Termine presentazione offerte 26/01/2026 ore 12:00
Data e ora inizio gara 27/01/2026 ore 10:00
Codice ID astegiudiziarie.it 4318032
285,00
1
€ 117.832

Ti interessa questa vendita?

north_east

Clicca qui per essere indirizzato alla scheda sul sito di provenienza

Bene di astegiudiziarie.it