highlight_off
Riferimento annuncio 321709 info

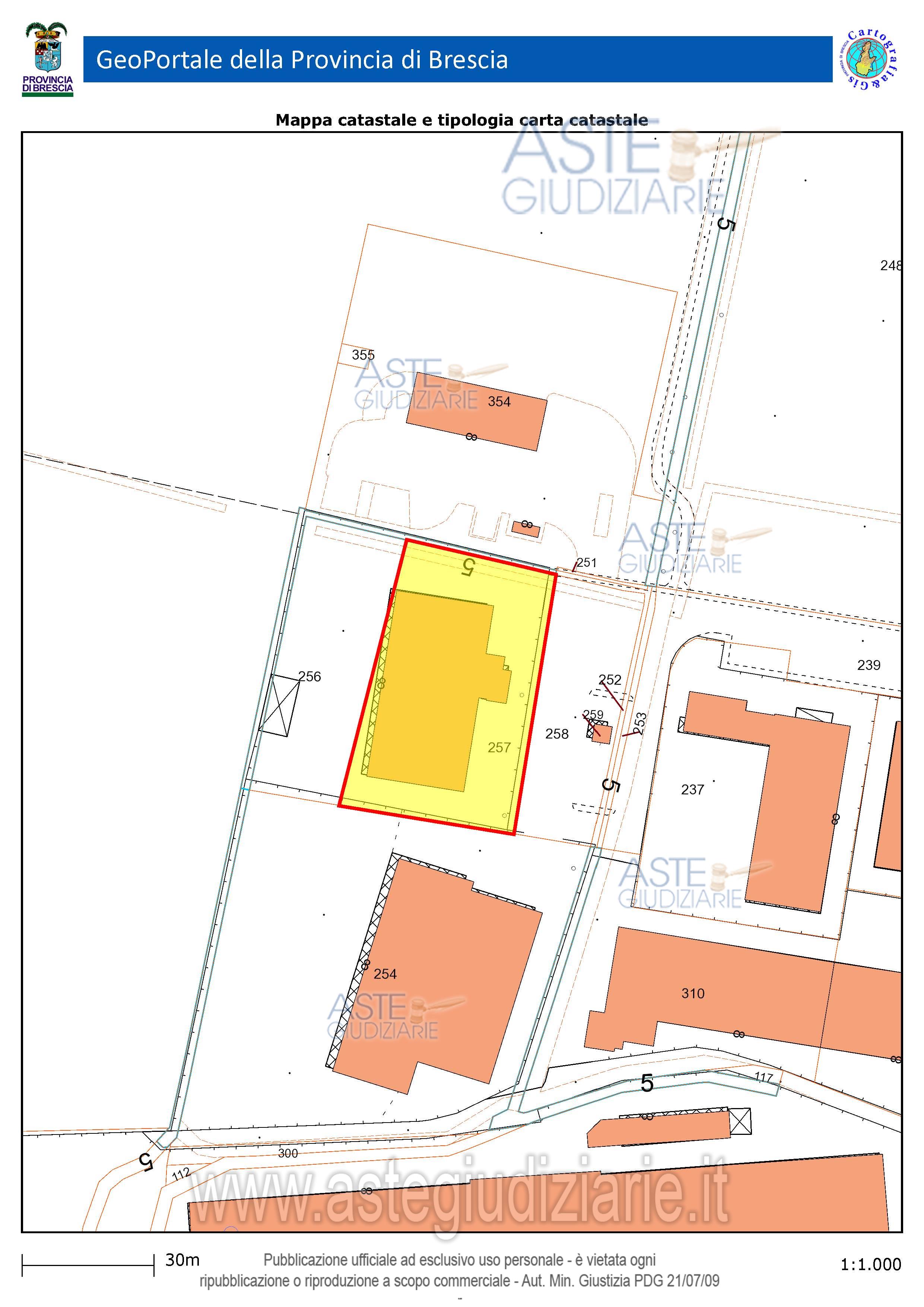
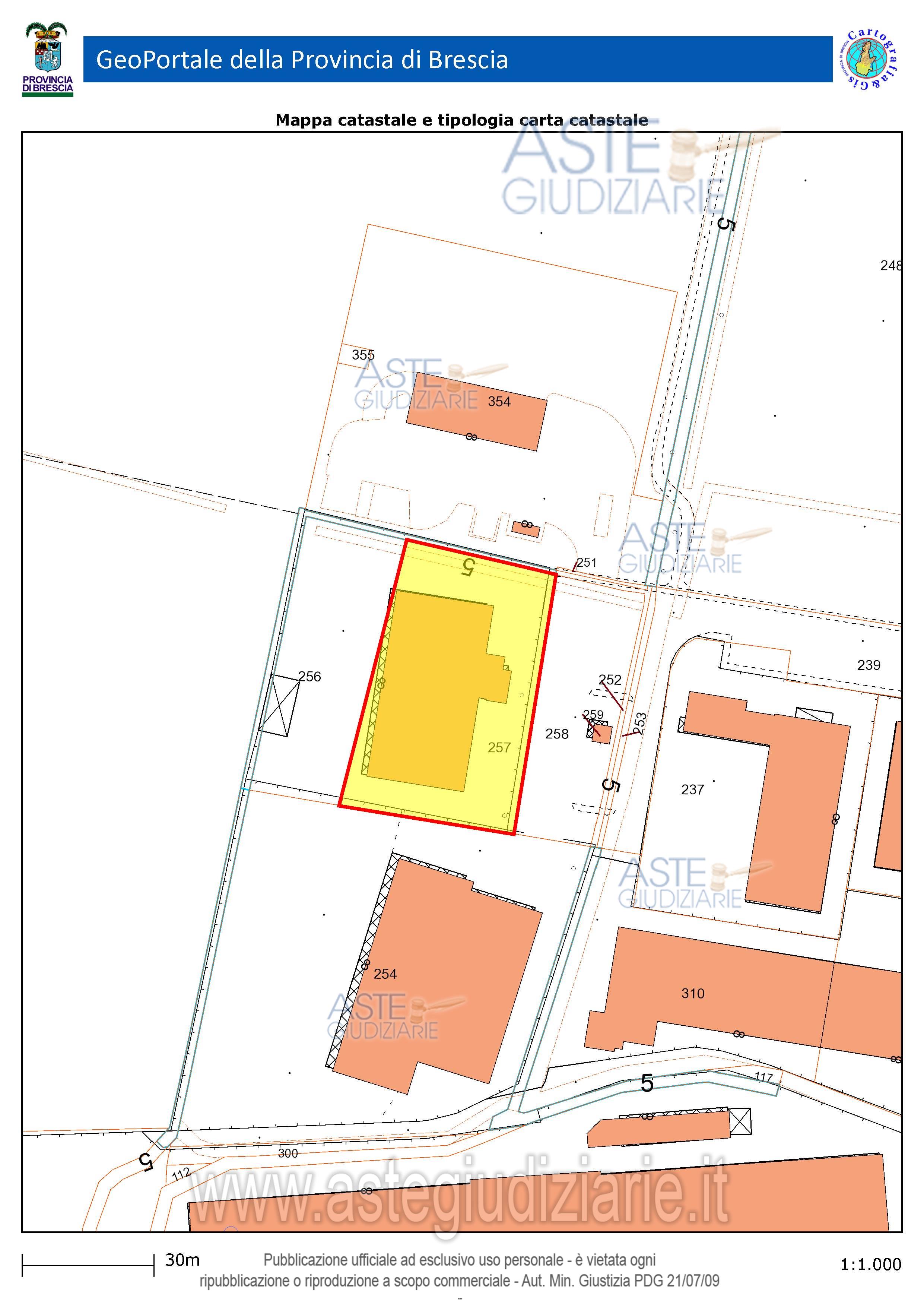
Fabbricato industriale Via S. Giuseppe, 23, 25010 Visano (BS)

€ 420.000
Vendita all'asta Senza incanto, con gara telematica asincrona - LOTTO UNICO: Capannone con palazzina uffici e terreno. Prezzo base € 420.000,00 (offerta minima € 420.000,00). Data inizio operazioni di vendita: 22/01/2026 ore 12:30. Curatore Dott. Laura Mazzolari. Rif. Tribunale di Brescia - Liquidazione giudiziale(cci) n. 73/2025

Tipologia di vendita Giudiziaria
Modalità di vendita Asincrona telematica
Termine presentazione offerte 01/01/1900 ore 00:00
Data e ora inizio gara 22/01/2026 ore 12:30
Codice ID astegiudiziarie.it 4341495
€ 420.000

Ti interessa questa vendita?

north_east

Clicca qui per essere indirizzato alla scheda sul sito di provenienza

Bene di astegiudiziarie.it