highlight_off
Riferimento annuncio 313020 info

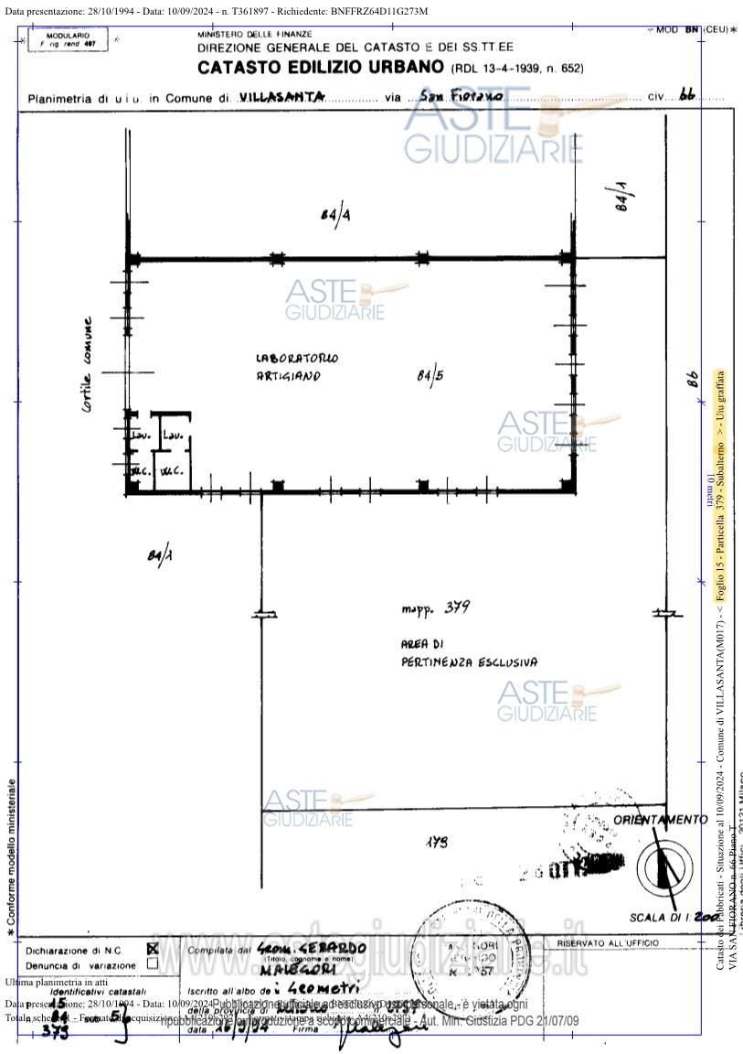
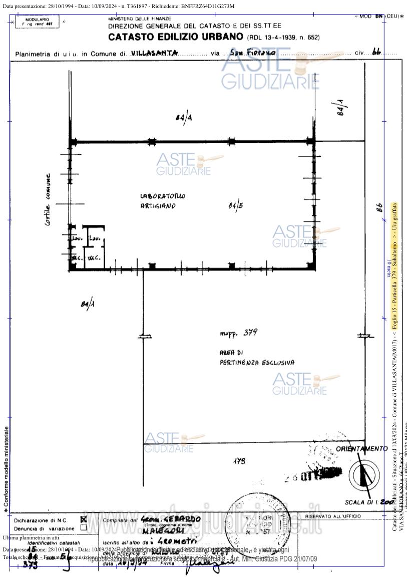
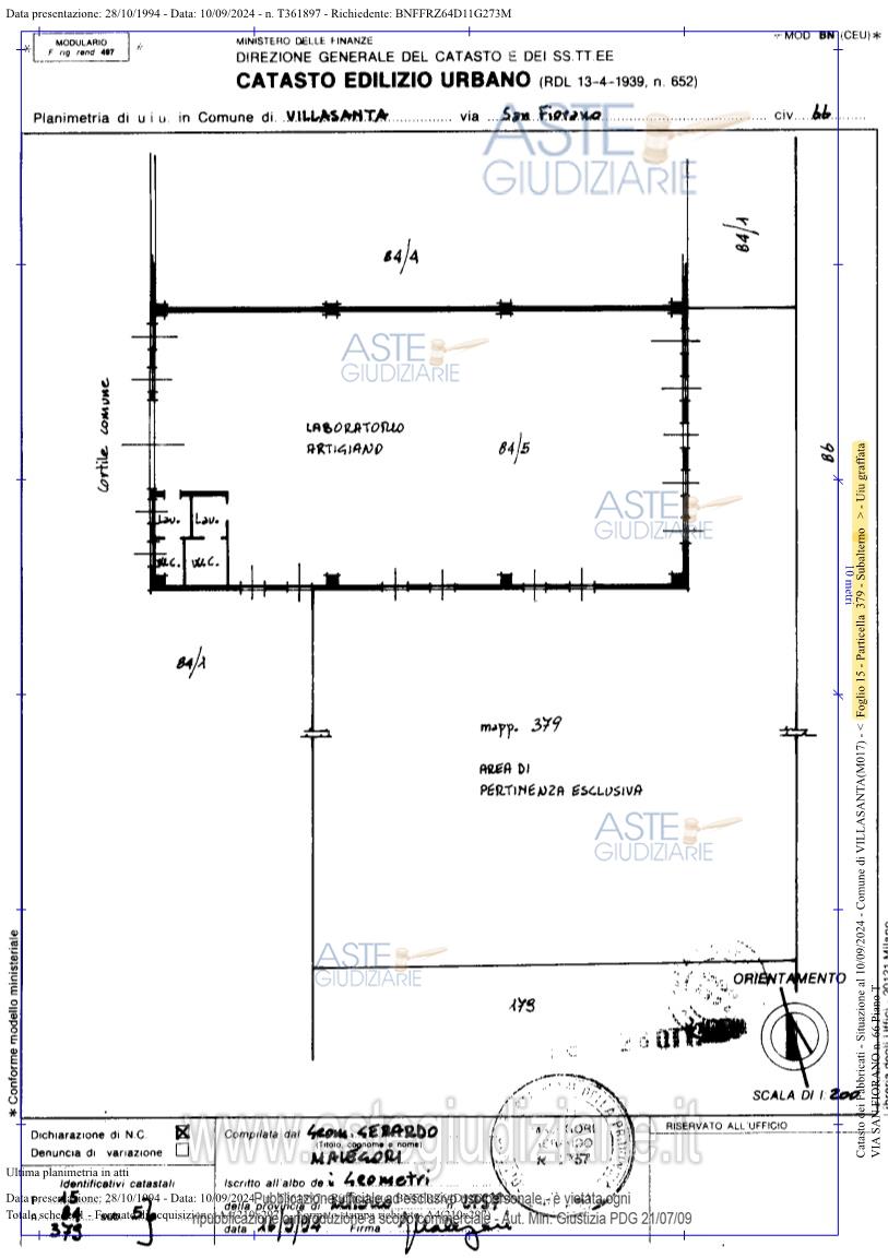
Fabbricato industriale Via S. Fiorano, 66, 20852 Villasanta MB, Italia, 20852 Villasanta (MB)

€ 1.500.000
Vendita all'asta Senza incanto, con gara telematica sincrona - LOTTO UNICO: Capannone industriale a Villasanta in via S. Fiorano 66, della superficie commerciale di 2.393,16 mq. Prezzo base € 1.500.000,00 (offerta minima € 1.125.000,00). Data vendita 19/11/2025 ore 15:00. Curatore Dott. Marco Cordaro - Email "SEGRETERIA@STUDIOCMA.EU"; Cell. 3518115048; Tel. 036239191. Rif. Tribunale di Monza - Liquidazione giudiziale(cci) n. 89/2024

Tipologia di vendita Giudiziaria
Modalità di vendita Sincrona telematica
Termine presentazione offerte 17/11/2025 ore 13:00
Data e ora inizio gara 19/11/2025 ore 15:00
Codice ID astegiudiziarie.it 4333677
€ 1.500.000

Ti interessa questa vendita?

north_east

Clicca qui per essere indirizzato alla scheda sul sito di provenienza

Bene di astegiudiziarie.it