highlight_off
Riferimento annuncio 248238 info

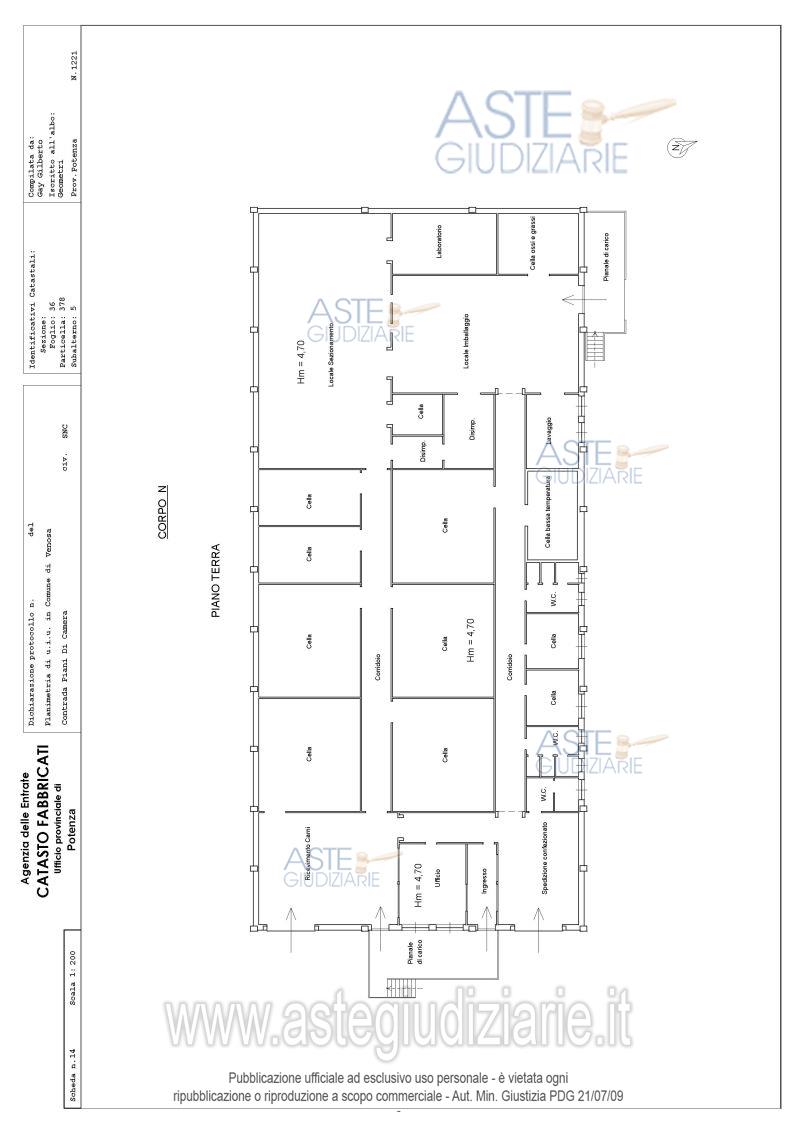
Fabbricato industriale Località Piani di Camera, 85029 Venosa (PZ)

4205,00
€ 1.400.000
Vendita all'asta Senza incanto - LOTTO UNICO: Complesso immobiliare ubicato nel Comune di Venosa alla Località Piani di Camera. Prezzo base € 1.400.000,00 (offerta minima € 1.050.000,00). Data vendita 06/02/2026 ore 10:00. Giudice Di Paolo. Professionista delegato alla vendita Avv. Paolo Alfano - Email "paolo.alfano@gmail.com". Custode Giudiziario Avv. Paolo Alfano - Email "paolo.alfano@gmail.com". Rif. Tribunale di Potenza - Esecuzione immobiliare post legge 80 n. 26/2020

Superficie 4205,00 mq
Vani
Bagni
Piano

Tipologia di vendita Giudiziaria
Modalità di vendita Presso il venditore
Termine presentazione offerte 01/01/1900 ore 00:00
Data e ora inizio gara 06/02/2026 ore 10:00
Codice ID astegiudiziarie.it 4283355
4205,00
€ 1.400.000

Ti interessa questa vendita?

north_east

Clicca qui per essere indirizzato alla scheda sul sito di provenienza

Bene di astegiudiziarie.it