highlight_off
Riferimento annuncio 315704 info

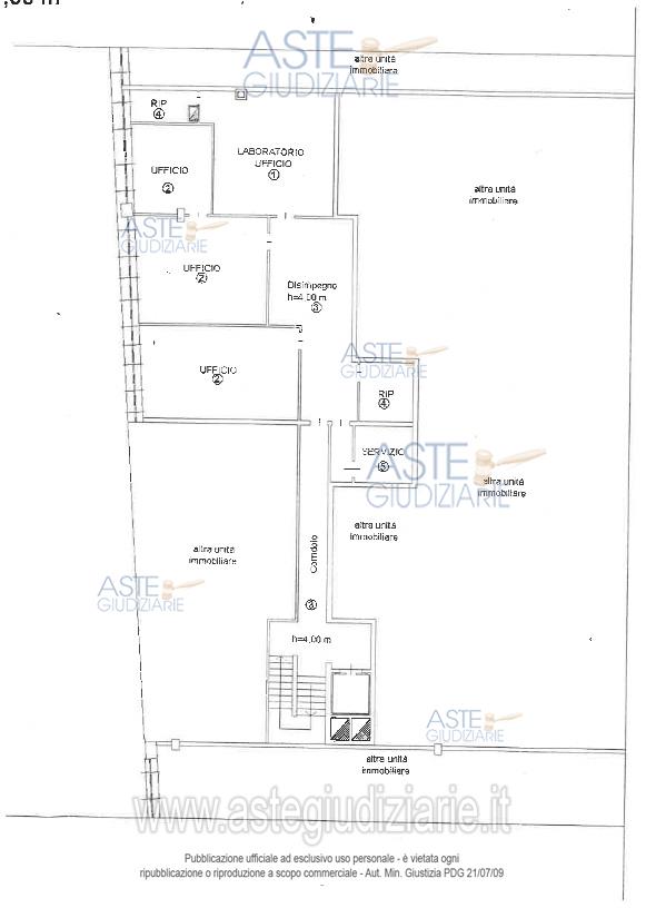
Fabbricato industriale Via Spalato, 63/I, 10100 Torino (TO)

185,00
1
€ 53.938
Vendita in attesa dell'emissione del nuovo bando d'asta. LOTTO 1: Opificio industriale e posto macchina in cortile. Ultimo prezzo base € 53.938,10 (offerta minima € 53.938,10). Professionista delegato alla vendita Not. Giovanni Schettino - Email "gschettino@notariato.it"; Tel. 0114052306. Rif. Ente Ministero delle Imprese e del Made in Italy - Liquidazione coatta n. 9/2018

Superficie 185,00 mq
Vani
Bagni 1
Piano

Tipologia di vendita Giudiziaria
Modalità di vendita Presso il venditore
Termine presentazione domande 01/01/1900 ore 00:00
Data e ora inizio gara 14/11/2025 ore 12:00
Codice ID astegiudiziarie.it 4336665
185,00
1
€ 53.938

Ti interessa questa vendita?

north_east

Clicca qui per essere indirizzato alla scheda sul sito di provenienza

Bene di astegiudiziarie.it