highlight_off
Riferimento annuncio 297962 info

Fabbricato industriale Via area artigianale c.da Zangarone SNC, 97018 Scicli (RG)

352,35
€ 193.735
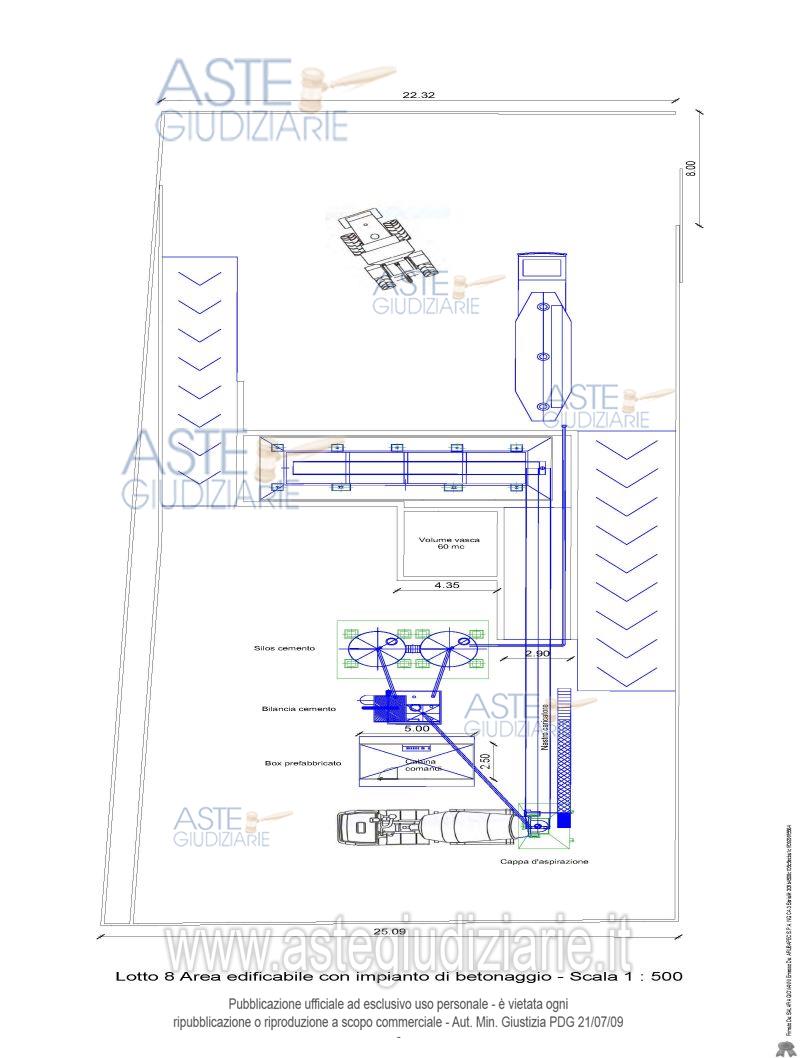
Vendita in attesa dell'emissione del nuovo bando d'asta. LOTTO 7: Fabbricato industriale in area artigianale c.da Zangarone. Il corpo di fabbrica ha dimensioni in pianta di 11,15 x 29,00 metri al piano terra per un totale di 352,35 mq. Altezza massima all'estrado. Ultimo prezzo base € 193.734,98 (offerta minima € 145.301,23). Giudice Carlo Di Cataldo. Professionista delegato alla vendita Dott. Francesca Mazzola - Email "studiofrancescamazzola@gmail.com". Custode Giudiziario Dott. Francesca Mazzola - Email "studiofrancescamazzola@gmail.com". Rif. Tribunale di Ragusa - Esecuzione immobiliare post legge 80 n. 236/2022

Superficie 352,35 mq
Vani
Bagni
Piano

Tipologia di vendita Giudiziaria
Modalità di vendita Sincrona mista
Termine presentazione offerte 25/07/2025 ore 13:00
Data e ora inizio gara 28/07/2025 ore 18:30
Codice ID astegiudiziarie.it 4322112
352,35
€ 193.735

Ti interessa questa vendita?

north_east

Clicca qui per essere indirizzato alla scheda sul sito di provenienza

Bene di astegiudiziarie.it