highlight_off
Riferimento annuncio 257275 info

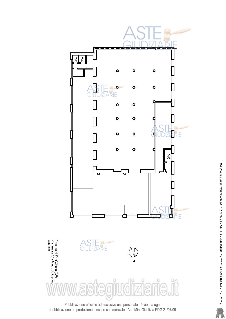
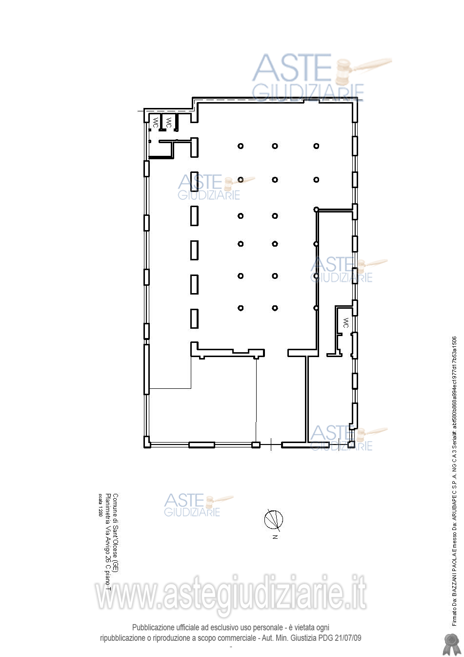
Fabbricato industriale Via Arvigo, edificio 26 cancello, 16010 Sant'Olcese (GE)

605,00
€ 68.755
Vendita all'asta Senza incanto, con gara telematica sincrona mista - LOTTO UNICO: piena proprietà (per la quota di 1000/1000) di fabbricato industriale, avente superficie convenzionale complessiva di 605 mq, posto al piano T. Trattasi di opifici. In particolare l’unità immobiliare comprende due locali, aventi due accessi distinti dal piazzale antistante di pertinenza. Nel primo locale, di superficie netta pari a 75 mq, è presente anche un piccolo bagno con antibagno. Nel secondo locale vi sono anche uno spogliatoio e due bagni. Prezzo base € 68.755,08 (offerta minima € 51.566,31). Data vendita 17/12/2025 ore 15:30. Giudice Dott. Tabacchi. Professionista delegato alla vendita Avv. Sabrina Felici - Email "avv.sabrinafelici@gmail.com"; Cell. 0100920643; Tel. 0100920638. Custode Giudiziario Sovemo Srl - Email "visitegenova@sovemo.com"; Tel. 0105299253. Rif. Tribunale di Genova - Esecuzione immobiliare post legge 80 n. 4/2023

Superficie 605,00 mq
Vani
Bagni
Piano

Tipologia di vendita Giudiziaria
Modalità di vendita Sincrona mista
Termine presentazione offerte 01/01/1900 ore 00:00
Data e ora inizio gara 17/12/2025 ore 15:30
Codice ID astegiudiziarie.it 4291421
605,00
€ 68.755

Ti interessa questa vendita?

north_east

Clicca qui per essere indirizzato alla scheda sul sito di provenienza

Bene di astegiudiziarie.it