highlight_off
Riferimento annuncio 301525 info

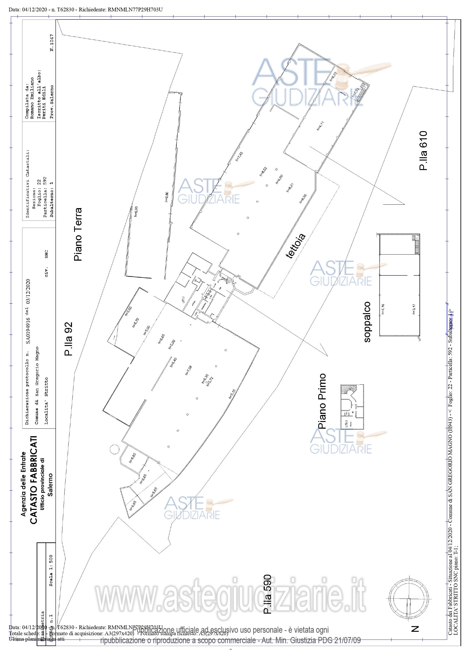
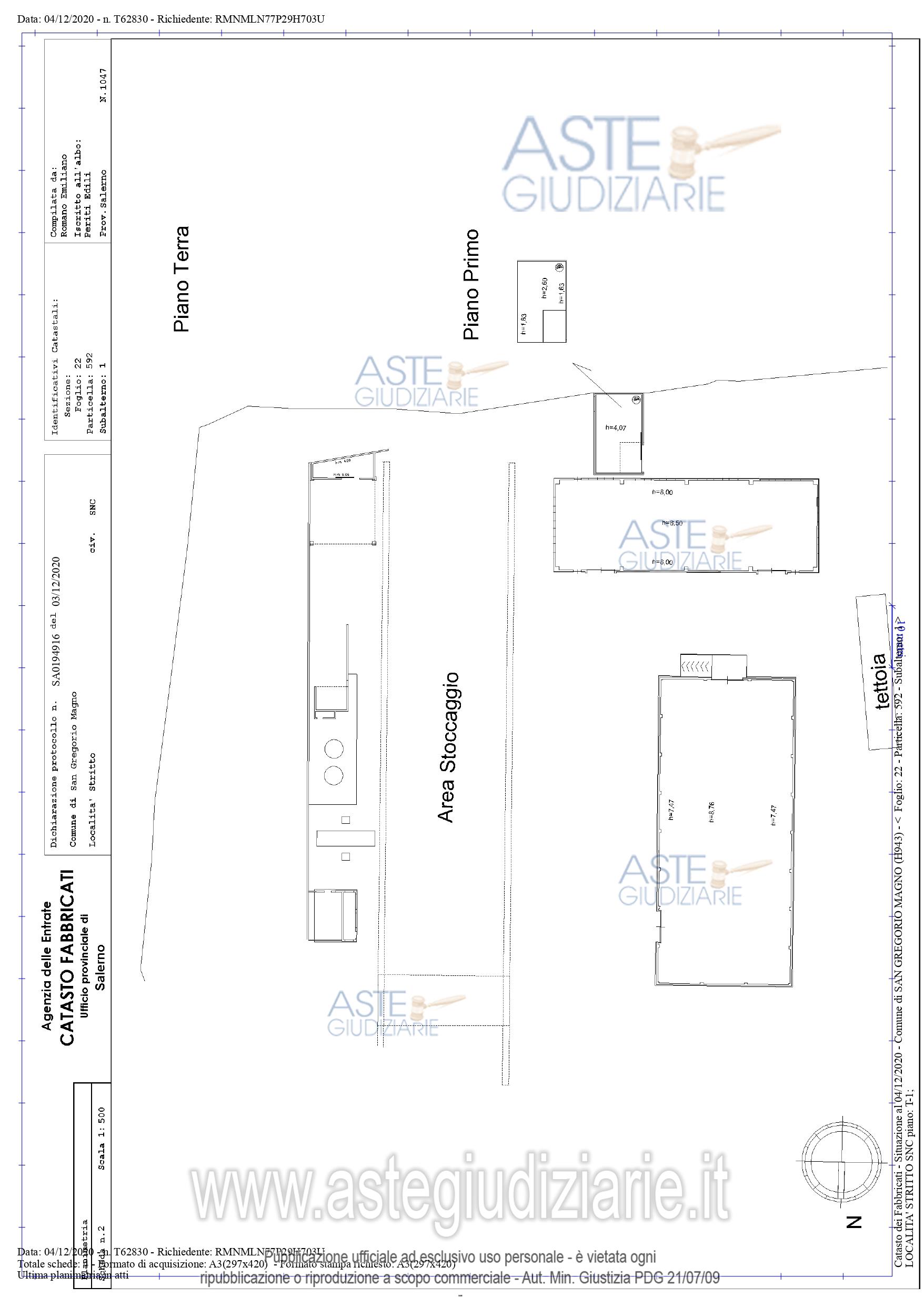
Fabbricato industriale 84020 Forluso SA, Italia, 84020 San Gregorio Magno (SA)

7000,00
€ 1.803.183
Vendita in attesa dell'emissione del nuovo bando d'asta. LOTTO 1: Compendio industriale in località Forluso - Stritto. Ultimo prezzo base € 1.803.182,74 (offerta minima € 1.352.387,06). Professionista delegato alla vendita Avv. Isaia Sales. Custode Giudiziario Avv. Isaia Sales - Email "isaiasales@hotmail.it"; Cell. 3285551616; Tel. 08119176493. Rif. Tribunale di Salerno - Esecuzione immobiliare post legge 80 n. 465/2017

Superficie 7000,00 mq
Vani
Bagni
Piano

Tipologia di vendita Giudiziaria
Modalità di vendita Asincrona telematica
Termine presentazione offerte 13/10/2025 ore 11:00
Data e ora inizio gara 14/10/2025 ore 11:00
Codice ID astegiudiziarie.it 4325036
7000,00
€ 1.803.183

Ti interessa questa vendita?

north_east

Clicca qui per essere indirizzato alla scheda sul sito di provenienza

Bene di astegiudiziarie.it