highlight_off
Riferimento annuncio 307155 info

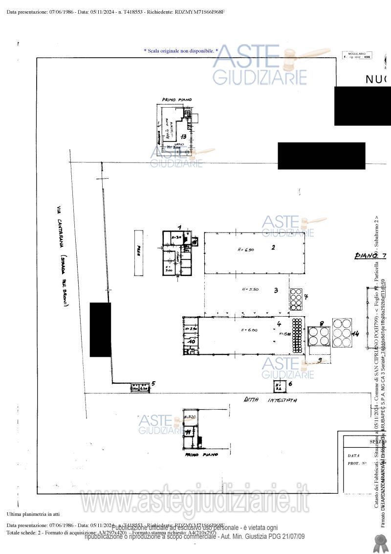
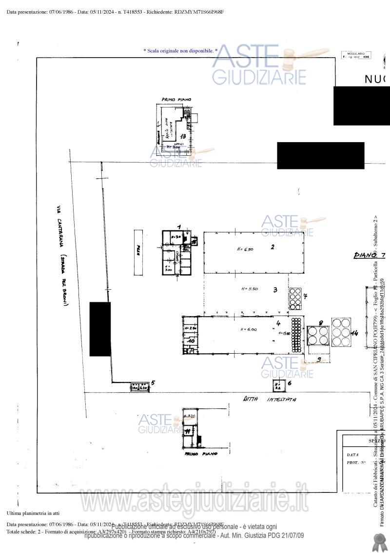
Fabbricato industriale Via Cantarana 11, 27043 San Cipriano Po (PV)

€ 334.125
Vendita all'asta Senza incanto, con gara telematica asincrona - LOTTO UNICO: Compendio immobiliare a tipologia industriale ad uso mangimificio. Prezzo base € 334.125,00 (offerta minima € 250.594,00). Data inizio operazioni di vendita: 05/02/2026 ore 15:00. Giudice Dott. Alessandro Maiola. Professionista delegato alla vendita Avv. Edoardo Sampietro - Email "edoardo.sampietro@gmail.com". Custode Giudiziario Istituto Vendite Giudiziarie Di Vigevano - Email "immobiliarivigevano@ifir.it"; Tel. 0381691137. Rif. Tribunale di Pavia - Espropriazione immobiliare (cartabia) n. 359/2024

Tipologia di vendita Giudiziaria
Modalità di vendita Asincrona telematica
Termine presentazione offerte 01/01/1900 ore 00:00
Data e ora inizio gara 05/02/2026 ore 15:00
Codice ID astegiudiziarie.it 4329387
€ 334.125

Ti interessa questa vendita?

north_east

Clicca qui per essere indirizzato alla scheda sul sito di provenienza

Bene di astegiudiziarie.it