highlight_off
Riferimento annuncio 250925 info

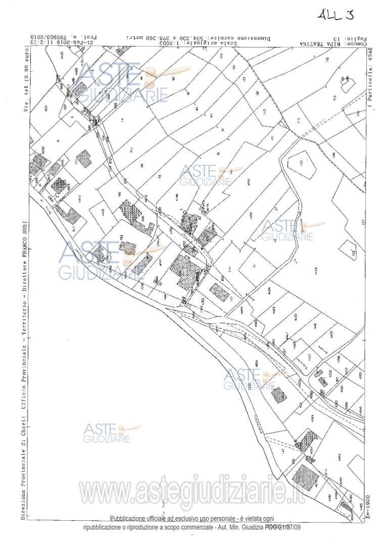
Fabbricato industriale C.da Arenile snc, 66010 Ripa Teatina (CH)

€ 24.989
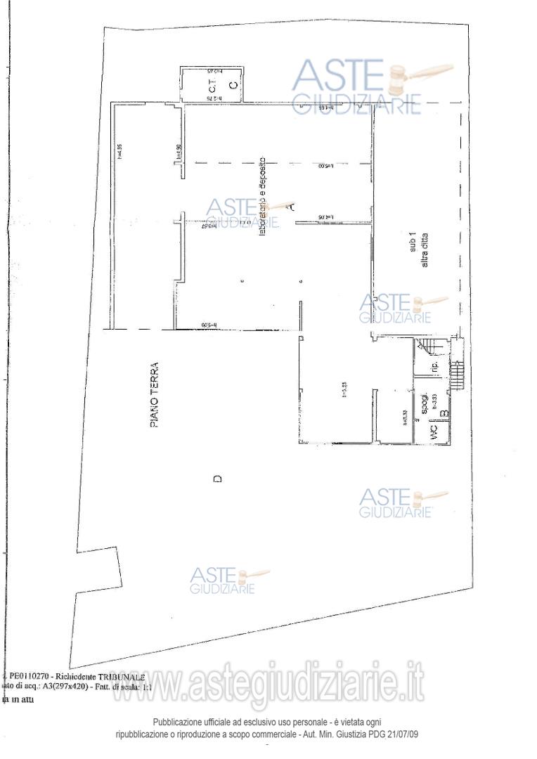
Vendita all'asta Competitiva - LOTTO UNICO: Opificio su due livelli, composto al P.T. da laboratorio e deposito con annessi servizi e corte esclusiva, al P1 da quattro locali, due ripostigli, wc, disimpegno e balcone a livello, con terreno circostante annesso della superficie complessiva di circa 1846 mq comprendente cabina elettrica, oltre terreno di circa mq 1530. Prezzo base € 24.989,00 (offerta minima € 24.989,00). Data vendita 07/05/2026 ore 16:00. Curatore: Avv. Sergio Iannucci - Email "iannuccisergio@gmail.com"; Tel. 085/4514814; Cell. 347/1865248. Rif. Tribunale di Pescara - Fallimentare (nuovo rito) n. 51/2016
Codice ID astegiudiziarie.it 4285413
€ 24.989

Ti interessa questa vendita?

north_east

Clicca qui per essere indirizzato alla scheda sul sito di provenienza

Bene di astegiudiziarie.it