highlight_off
Riferimento annuncio 285915 info

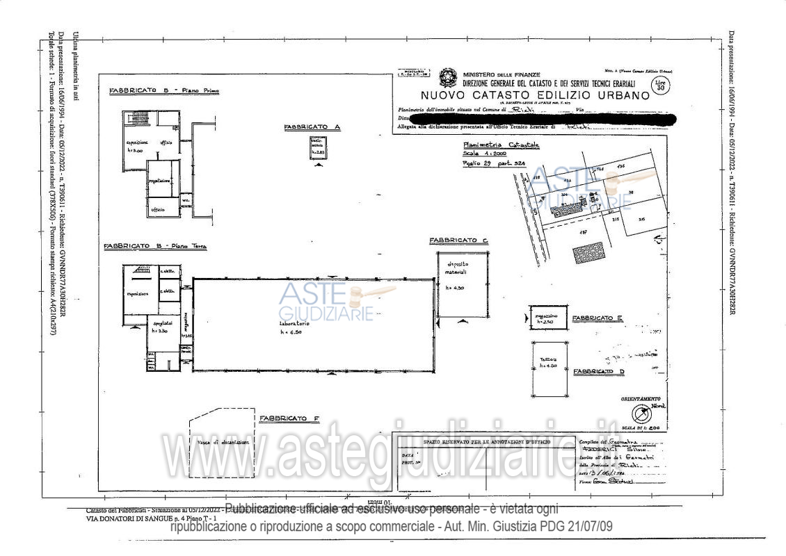
Fabbricato industriale Via Donatori di Sangue, 4, 02100 Rieti RI, Italia, 02100 Rieti (RI)

€ 168.312
Vendita all'asta Senza incanto, con gara telematica asincrona - LOTTO UNICO: Piena proprietà per la quota 1/1 di capannone industriale sito in Rieti (02100 - RI), Loc. Nucleo Industriale di Rieti-Cittaducale, in Via Donatori di Sangue n. 4. Descrizione: Il bene in questione è un opificio composto da un capannone industriale con locali annessi a servizio dello stesso destinati ad uffici e servizi diversi . Prezzo base € 168.312,31 (offerta minima € 126.234,24). Data inizio operazioni di vendita: 10/12/2025 ore 10:15. Professionista delegato alla vendita Avv. Chiara Giuliani - Email "avv.chiaragiuliani@gmail.com"; Tel. 0765841334. Custode Giudiziario Avv. Chiara Giuliani - Email "avv.chiaragiuliani@gmail.com"; Tel. 0765841334. Rif. Tribunale di Rieti - Esecuzione immobiliare post legge 80 n. 69/2022

Tipologia di vendita Giudiziaria
Modalità di vendita Asincrona telematica
Termine presentazione offerte 01/01/1900 ore 00:00
Data e ora inizio gara 10/12/2025 ore 10:15
Codice ID astegiudiziarie.it 4313067
€ 168.312

Ti interessa questa vendita?

north_east

Clicca qui per essere indirizzato alla scheda sul sito di provenienza

Bene di astegiudiziarie.it