highlight_off
Riferimento annuncio 332955 info

Fabbricato industriale Via Flaminia, Riano RM, Italia, 00060 Riano (RM)

€ 4.238.820
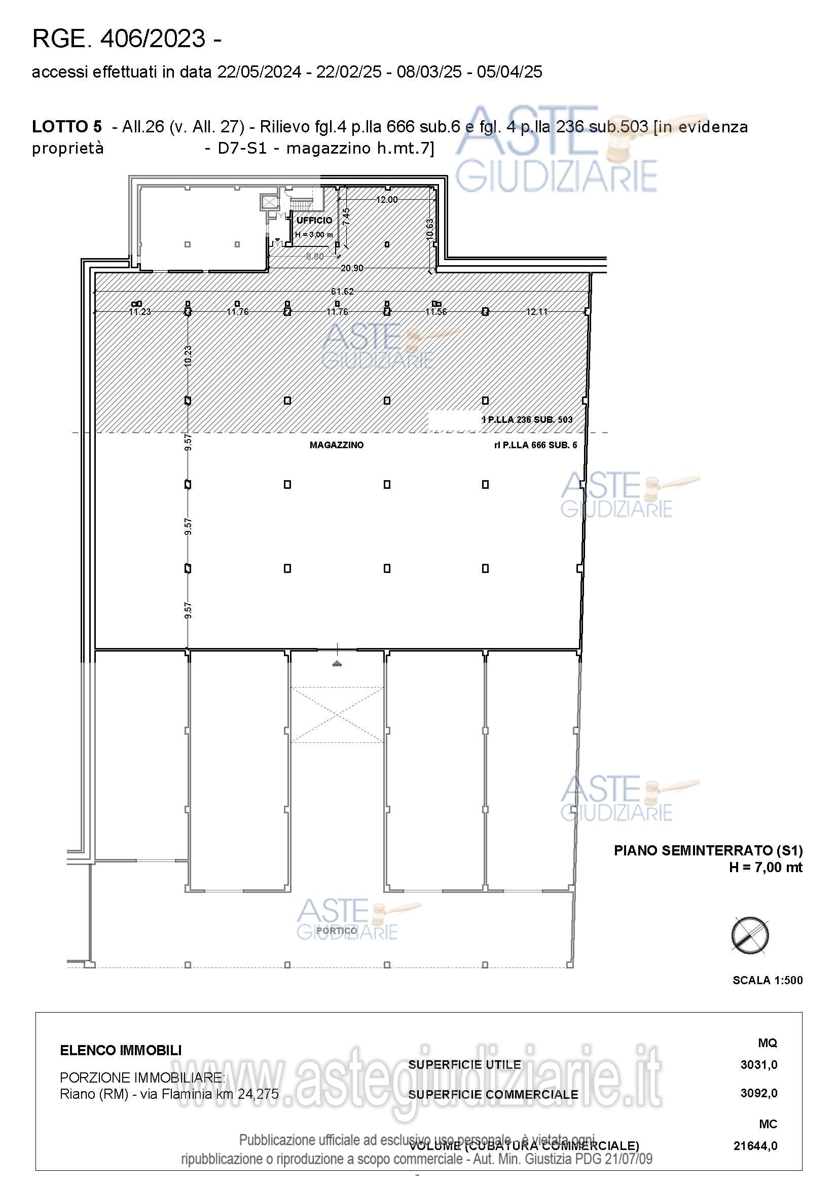
Vendita all'asta Senza incanto, con gara telematica asincrona - LOTTO 5: Serie magazzini h.mt.7.0 collocati nel seminterrato il cui accesso avviene mediante corpo scala o piazzale antistante (p.lla 616);Immobili identificati all’ NCEU fgl.4 p.lla.666 sub 6 cat D7 di proprietà debitore fisicamente fusa con NCEU fgl.4 p.lla.236 sub 503 proprietà terzo datore ipoteca ,consistenza complessiva mq 3092.00.Al lotto 5 vengono assegnati i terreni rimasti, prevalentemente piazzali antistanti identificati per un totale mq 12186. Prezzo base € 4.238.820,00 (offerta minima € 3.179.115,00). Data inizio operazioni di vendita: 25/06/2026 ore 11:00. Professionista delegato alla vendita: Avv. Federico Lolli Lusignano - Email "federicololli@live.it". Custode Giudiziario: Ivg Di Roma Srl - Email "pvp@visiteivgroma.it"; Tel. 06/89569801. Rif. Tribunale di Tivoli - Esecuzione immobiliare post legge 80 n. 406/2023

Tipologia di vendita Giudiziaria
Modalità di vendita Asincrona telematica
Termine presentazione offerte 01/01/1900 ore 00:00
Data e ora inizio gara 25/06/2026 ore 11:00
Codice ID astegiudiziarie.it 4350349
€ 4.238.820

Ti interessa questa vendita?

north_east

Clicca qui per essere indirizzato alla scheda sul sito di provenienza

Bene di astegiudiziarie.it