highlight_off
Riferimento annuncio 332951 info

Fabbricato industriale Via Flaminia, Riano RM, Italia, 00060 Riano (RM)

€ 2.773.594
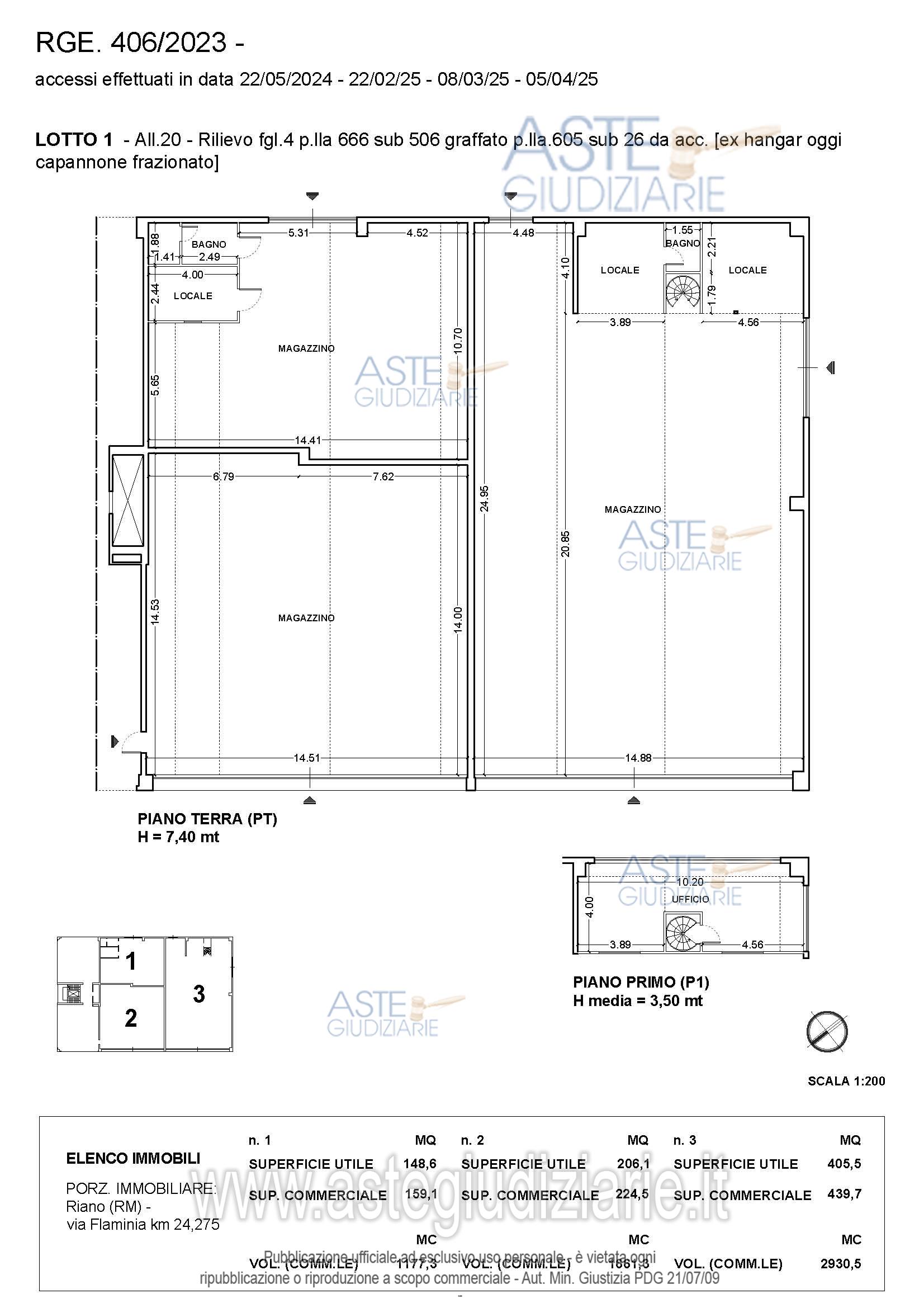
Vendita all'asta Senza incanto, con gara telematica asincrona - LOTTO 1: Capannone (ex hangar) frazionato in n.3 Locali. L'unità n.1 è dotata di servizi+spogliatoio, l'unità n.3 di servizi+piccolo ufficio soppalcato.I piazzali antistanti e i terreni a valle, dove è presente un'elisuperficie ed un impianto trattamento acque nere, vengono assegnati a questo lotto. Prezzo base € 2.773.594,20 (offerta minima € 2.080.196,00). Data inizio operazioni di vendita: 25/06/2026 ore 11:00. Professionista delegato alla vendita: Avv. Federico Lolli Lusignano - Email "federicololli@live.it". Custode Giudiziario: Ivg Di Roma Srl - Email "pvp@visiteivgroma.it"; Tel. 06/89569801. Rif. Tribunale di Tivoli - Esecuzione immobiliare post legge 80 n. 406/2023

Tipologia di vendita Giudiziaria
Modalità di vendita Asincrona telematica
Termine presentazione offerte 01/01/1900 ore 00:00
Data e ora inizio gara 25/06/2026 ore 11:00
Codice ID astegiudiziarie.it 4350345
€ 2.773.594

Ti interessa questa vendita?

north_east

Clicca qui per essere indirizzato alla scheda sul sito di provenienza

Bene di astegiudiziarie.it