highlight_off
Riferimento annuncio 295109 info

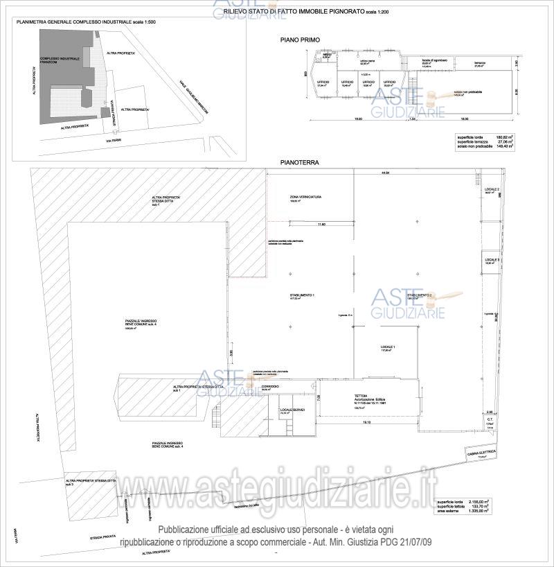
Fabbricato industriale Via Enrico Fermi, 6/B 09045 Quartu Sant'Elena CA, Italia, 09045 Quartu Sant'Elena (CA)

2370,00
€ 460.800
Vendita all'asta Senza incanto, con gara telematica asincrona - LOTTO UNICO: Quota pari all’intero del diritto di proprietà del capannone industriale facente parte del maggior complesso industriale con accesso dalla via Enrico Fermi 6/B composto da due locali ad uso laboratorio, locale verniciatura, due locali uso deposito, disimpegni, spogliatoi, antibagno, wc, una tettoia e una cabina elettrica nel piazzale antistante il fabbricato al piano terra e ingresso, disimpegno, quattro locali uso ufficio, wc, terrazza e solaio non praticabile al piano primo. Prezzo base € 460.800,00 (offerta minima € 345.600,00). Data inizio operazioni di vendita: 25/11/2025 ore 11:00. Giudice Silvia Cocco. Professionista delegato alla vendita Not. Stefano Casti - Email "ufficiouniconotai@pec.it"; Tel. 07060222574. Custode Giudiziario Ivg Cagliari - Email "ivg.visiteimmobili@tiscali.it"; Tel. 0702299036. Rif. Tribunale di Cagliari - Esecuzione immobiliare post legge 80 n. 254/2020

Superficie 2370,00 mq
Vani
Bagni
Piano

Tipologia di vendita Giudiziaria
Modalità di vendita Asincrona telematica
Termine presentazione offerte 24/11/2025 ore 13:00
Data e ora inizio gara 25/11/2025 ore 11:00
Codice ID astegiudiziarie.it 4320076
2370,00
€ 460.800

Ti interessa questa vendita?

north_east

Clicca qui per essere indirizzato alla scheda sul sito di provenienza

Bene di astegiudiziarie.it