highlight_off
Riferimento annuncio 285023 info

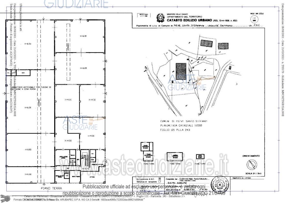
Fabbricato industriale Via Dagnano, 52036 Dagnano AR, Italia, 52036 Pieve Santo Stefano (AR)

1558,93
€ 395.264
Vendita all'asta Senza incanto, con gara telematica sincrona mista - LOTTO UNICO: Opificio industriale posto in Comune di Pieve Santo Stefano (AR). Prezzo base € 395.264,00 (offerta minima € 296.448,00). Data vendita 26/02/2026 ore 09:00. Professionista delegato alla vendita Avv. Lucia Tortoreti - Email "luciatortoreti@gmail.com"; Tel. 3338518085. Custode Giudiziario Avv. Istituto Vendite Giudiziarie Arezzo-Siena - Email "visite.ivg@gmail.com"; Cell. 3397337017; Tel. 0577318111. Rif. Tribunale di Arezzo - Esecuzione immobiliare post legge 80 n. 125/2022

Superficie 1558,93 mq
Vani
Bagni
Piano

Tipologia di vendita Giudiziaria
Modalità di vendita Sincrona mista
Termine presentazione offerte 25/02/2026 ore 13:00
Data e ora inizio gara 26/02/2026 ore 09:00
Codice ID astegiudiziarie.it 4312427
1558,93
€ 395.264

Ti interessa questa vendita?

north_east

Clicca qui per essere indirizzato alla scheda sul sito di provenienza

Bene di astegiudiziarie.it