highlight_off
Riferimento annuncio 270493 info

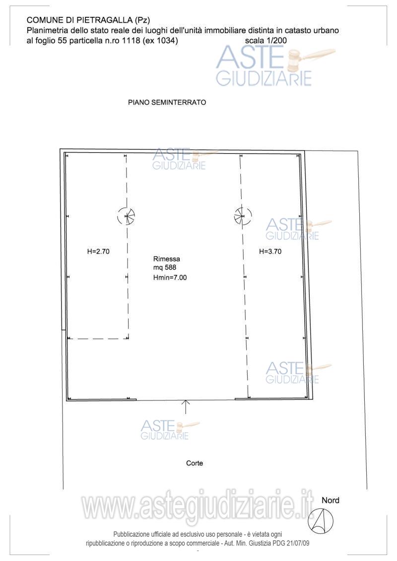
Fabbricato industriale C.da Settanni ex C.da Crocevia, 85016 Pietragalla (PZ)

2015,00
€ 37.095
Vendita all'asta Senza incanto - LOTTO 4: Quota 1/1 di Immobili in Pietragalla Categoria C/2 + altro Immobile Categoria C/6 con annessi terreni. Per maggiori dettagli si consiglia la lettura della perizia di stima. Prezzo base € 37.094,96 (offerta minima € 27.821,22). Data vendita 08/01/2026 ore 12:30. Giudice Annachiara Di Paolo. Professionista delegato alla vendita Dott. Michele Iuliano - Email "dott.micheleiuliano@gmail.com"; Cell. 3477062963; Tel. 3477062963. Custode Giudiziario Dott. Michele Iuliano - Email "dott.micheleiuliano@gmail.com"; Cell. 3477062963; Tel. 3477062963. Rif. Tribunale di Potenza - Esecuzione immobiliare post legge 80 n. 14/2020

Superficie 2015,00 mq
Vani
Bagni
Piano

Tipologia di vendita Giudiziaria
Modalità di vendita Presso il venditore
Termine presentazione offerte 01/01/1900 ore 00:00
Data e ora inizio gara 08/01/2026 ore 12:30
Codice ID astegiudiziarie.it 4300895
2015,00
€ 37.095

Ti interessa questa vendita?

north_east

Clicca qui per essere indirizzato alla scheda sul sito di provenienza

Bene di astegiudiziarie.it