highlight_off
Riferimento annuncio 83737 info

Fabbricato industriale VIA FORNELLI S.N., 95046 Palagonia (CT)

1463,00
€ 138.705
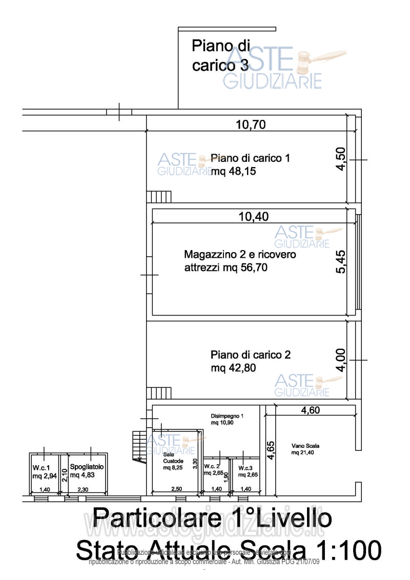
Vendita all'asta Senza incanto - LOTTO UNICO: 1 – Locale artigianale su due livelli, insistente su un’area di circa mq 4.282,00, di cui mq 1.137,00 occupati dall’immobile principale, mq 1.751,00 occupati da locali accessori e da una struttura precaria in ferro e i rimanenti mq 1.394,00 sono utilizzati come area di manovra e parcheggio. Prezzo base € 138.704,59 (offerta minima € 104.028,44). Data vendita 25/06/2026 ore 17:00. Professionista delegato alla vendita: Avv. Massimo Bongiovanni - Email "studiolegale.bongiovanni@gmail.com"; Tel. 095/388875. Custode Giudiziario: Avv. Massimo Bongiovanni - Email "studiolegale.bongiovanni@gmail.com"; Tel. 095/388875. Rif. Tribunale di Caltagirone - Esecuzione immobiliare post legge 80 n. 13/2015

Superficie 1463,00 mq
Vani
Bagni
Piano

Tipologia di vendita Giudiziaria
Modalità di vendita Presso il venditore
Termine presentazione offerte 01/01/1900 ore 00:00
Data e ora inizio gara 25/06/2026 ore 17:00
Codice ID astegiudiziarie.it 417195
1463,00
€ 138.705

Ti interessa questa vendita?

north_east

Clicca qui per essere indirizzato alla scheda sul sito di provenienza

Bene di astegiudiziarie.it