highlight_off
Riferimento annuncio 306695 info

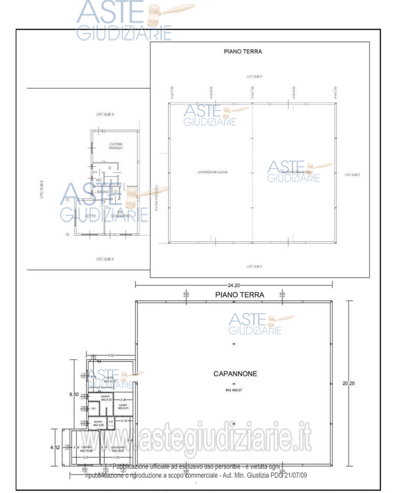
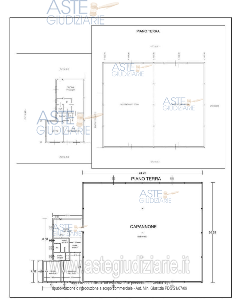
Fabbricato industriale Via Enzo Ferrari, 09070 Nurachi (OR)

577,61
€ 99.375
Vendita all'asta Senza incanto, con gara telematica sincrona - LOTTO UNICO: Capannone ad uso industriale/artigianale. Prezzo base € 99.375,00 (offerta minima € 74.531,00). Data vendita 22/10/2025 ore 11:00. Giudice Dott. Andrea Bonetti. Professionista delegato alla vendita Dott. Maria Margherita Zoccheddu - Email "studio.zoccheddu@gmail.com"; Tel. 0783212271. Custode Giudiziario Ivg Sardegna - Email "visite.ivgoristano@gmail.com"; Tel. 079630505. Rif. Tribunale di Oristano - Esecuzione immobiliare post legge 80 n. 11/2024

Superficie 577,61 mq
Vani
Bagni
Piano

Tipologia di vendita Giudiziaria
Modalità di vendita Sincrona telematica
Termine presentazione offerte 21/10/2025 ore 13:00
Data e ora inizio gara 22/10/2025 ore 11:00
Codice ID astegiudiziarie.it 4328919
577,61
€ 99.375

Ti interessa questa vendita?

north_east

Clicca qui per essere indirizzato alla scheda sul sito di provenienza

Bene di astegiudiziarie.it