highlight_off
Riferimento annuncio 329456 info

Fabbricato industriale Viale I Maggio, Nereto TE, Italia, 64015 Nereto (TE)

6629,00
€ 473.860
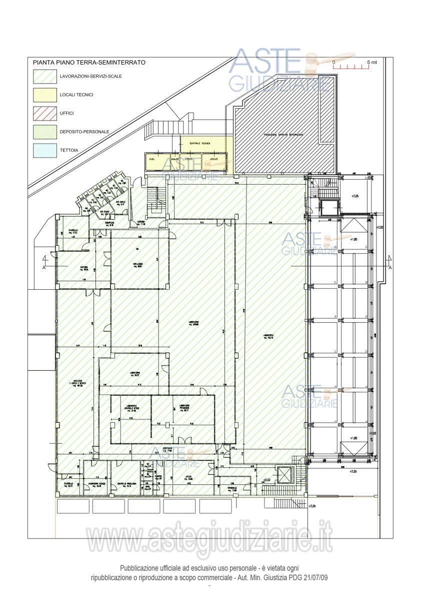
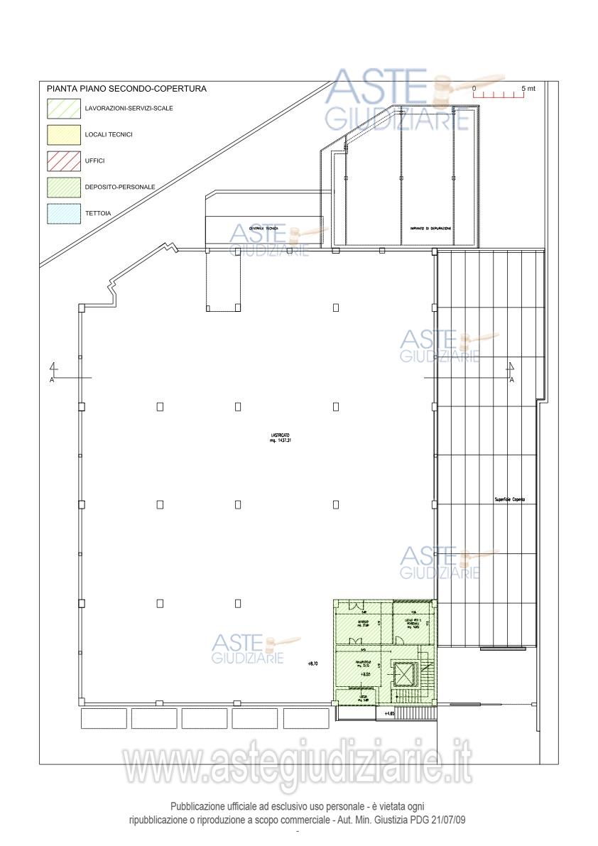
Vendita all'asta Senza incanto, con gara telematica asincrona - LOTTO UNICO: Fabbricato industriale su tre piani della superficie coperta pari a circa Mq. 2.182 ubicato a Nereto (TE) - Viale 1° Maggio, oltre area scoperta avente superficie complessiva di 4.235 mq. adibita a parcheggio, viabilità e percorsi. Area urbana di mq 78,00 e n. 2 terreni di complessivi mq 134,00. Prezzo base € 473.860,00 (offerta minima € 355.395,00). Data inizio operazioni di vendita: 15/05/2026 ore 15:00. Professionista delegato alla vendita: Dott. Andrea Partenza - Email "andrea@studiopartenza.it"; Cell. 333/9343377. Custode Giudiziario: Dott. Andrea Partenza - Email "andrea@studiopartenza.it"; Cell. 333/9343377. Rif. Tribunale di Teramo - Espropriazione immobiliare (cartabia) n. 183/2024

Superficie 6629,00 mq
Vani
Bagni
Piano

Tipologia di vendita Giudiziaria
Modalità di vendita Asincrona telematica
Termine presentazione offerte 14/05/2026 ore 23:59
Data e ora inizio gara 15/05/2026 ore 15:00
Codice ID astegiudiziarie.it 4346993
6629,00
€ 473.860

Ti interessa questa vendita?

north_east

Clicca qui per essere indirizzato alla scheda sul sito di provenienza

Bene di astegiudiziarie.it