highlight_off
Riferimento annuncio 244514 info

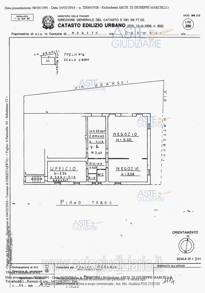
Fabbricato industriale VIA GRAMSCI 1,3,5, 64015 Nereto (TE)

630,00
€ 63.000
Vendita all'asta Senza incanto, con gara telematica asincrona - LOTTO 1: FABBRICATO CIVILE COMPOSTO DA NEGOZIO, LABORATORIO, APPARTAMENTO E OPIFICIO. Prezzo base € 63.000,00 (offerta minima € 47.250,00). Data inizio operazioni di vendita: 26/11/2025 ore 15:00. Professionista delegato alla vendita Dott. Andrea Partenza - Email "andrea@studiopartenza.it". Custode Giudiziario Dott. Andrea Partenza - Email "andrea@studiopartenza.it". Rif. Tribunale di Teramo - Esecuzione immobiliare post legge 80 n. 29/2014

Superficie 630,00 mq
Vani
Bagni
Piano

Tipologia di vendita Giudiziaria
Modalità di vendita Asincrona telematica
Termine presentazione offerte 25/11/2025 ore 23:59
Data e ora inizio gara 26/11/2025 ore 15:00
Codice ID astegiudiziarie.it 4166621
630,00
€ 63.000

Ti interessa questa vendita?

north_east

Clicca qui per essere indirizzato alla scheda sul sito di provenienza

Bene di astegiudiziarie.it