highlight_off
Riferimento annuncio 333238 info

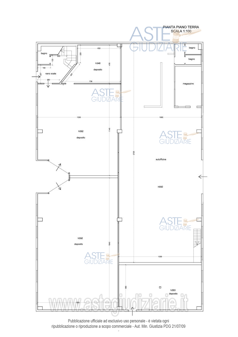
Fabbricato industriale Via Thomas Alva Edison, n 4 , 00015 Monterotondo RM, Italia, 00015 Monterotondo (RM)

1620,00
€ 665.000
Vendita all'asta Senza incanto, con gara telematica asincrona - LOTTO UNICO: 1/1 diritto di superficie fabbricato uso uffici ed artigianale con corte di pertinenza in Monterotondo Via Thomas Edison 4 e Via Bruno Pontecorvo snc paino T, mezzanino,1 mq 1620 NCEU f.17 part.434 Cat D/1. NCT f.17 part.434 Piano T composto da autofficina e 3 locali deposito, al piano mezzanino due locali soppalco, al piano primo locali ad uso ufficio. Alcuni locali sono occupati con contratti di locazione. Prezzo base € 665.000,00 (offerta minima € 498.750,00). Data inizio operazioni di vendita: 15/07/2026 ore 14:00. Professionista delegato alla vendita: Avv. Isabella Nasello - Email "avv.isabellanasello@gmail.com"; Tel. 0774/555468; Cell. 328/4738346. Custode Giudiziario: Ivg Di Roma Srl - Email "pvp@visiteivgroma.it"; Tel. 06/89569801. Rif. Tribunale di Tivoli - Espropriazione immobiliare (cartabia) n. 284/2024

Superficie 1620,00 mq
Vani
Bagni
Piano

Tipologia di vendita Giudiziaria
Modalità di vendita Asincrona telematica
Termine presentazione offerte 14/07/2026 ore 23:59
Data e ora inizio gara 15/07/2026 ore 14:00
Codice ID astegiudiziarie.it 4350591
1620,00
€ 665.000

Ti interessa questa vendita?

north_east

Clicca qui per essere indirizzato alla scheda sul sito di provenienza

Bene di astegiudiziarie.it