highlight_off
Riferimento annuncio 306283 info

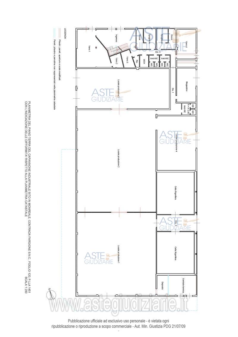
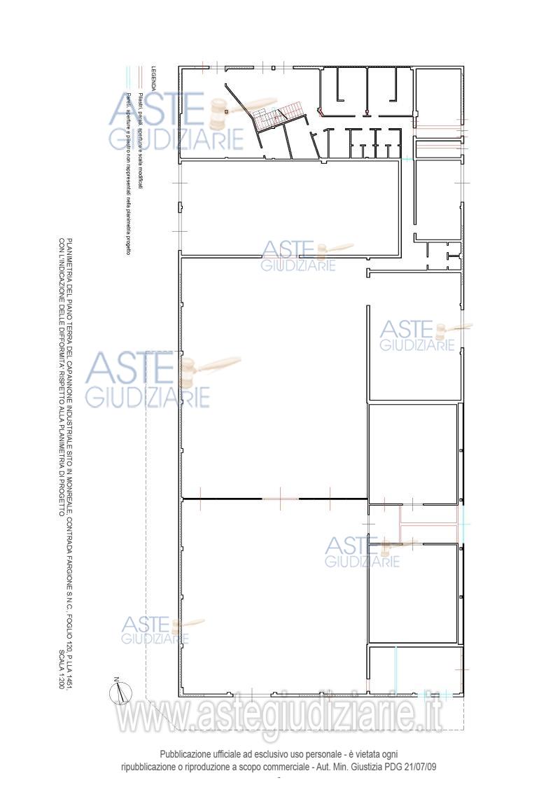
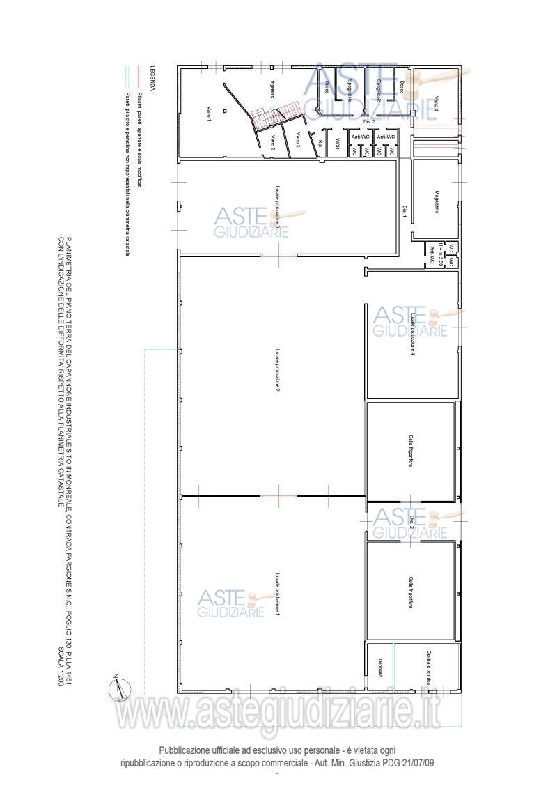
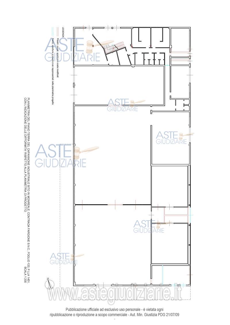
Fabbricato industriale SS624, Monreale PA, Italia - contrada Fargione snc, 90046 Monreale (PA)

20000,00
€ 441.276
Vendita all'asta Senza incanto, con gara telematica sincrona mista - LOTTO UNICO: LOTTO UNICO: Fabbricato industriale sito in Monreale (PA), Contrada Fargione s.n.c., piano terra e piano primo; consistente in un opificio per la trasformazione di prodotti agricoli, insistente su un lotto di forma quadrilatera di superficie complessiva pari a circa mq 20.000,00; Superficie Commerciale mq. 4.132,00; C.F. Comune di Monreale Fg.120 p.lla 1451, Categoria D/7. OCCUPATO SENZA TITOLO. Prezzo base € 441.276,19 (offerta minima € 330.957,14). Data vendita 10/07/2026 ore 10:30. Professionista delegato alla vendita: Avv. Alessandro D'avenia - Email "info@dagape.it"; Tel. 091/322911; Cell. 389/6777421. Custode Giudiziario: Avv. Alessandro D'avenia - Email "info@dagape.it"; Tel. 091/322911; Cell. 389/6777421. Rif. Tribunale di Palermo - Esecuzione immobiliare post legge 80 n. 299/2022

Superficie 20000,00 mq
Vani
Bagni
Piano

Tipologia di vendita Giudiziaria
Modalità di vendita Sincrona mista
Termine presentazione offerte 09/07/2026 ore 13:00
Data e ora inizio gara 10/07/2026 ore 10:30
Codice ID astegiudiziarie.it 4328734
20000,00
€ 441.276

Ti interessa questa vendita?

north_east

Clicca qui per essere indirizzato alla scheda sul sito di provenienza

Bene di astegiudiziarie.it