Riferimento annuncio 319085
Fabbricato industriale C.da Fargione - Agglomerato Industriale ASI - V.le delle Industrie n.16, 97015 Modica (RG)
14000,00
€ 2.220.000
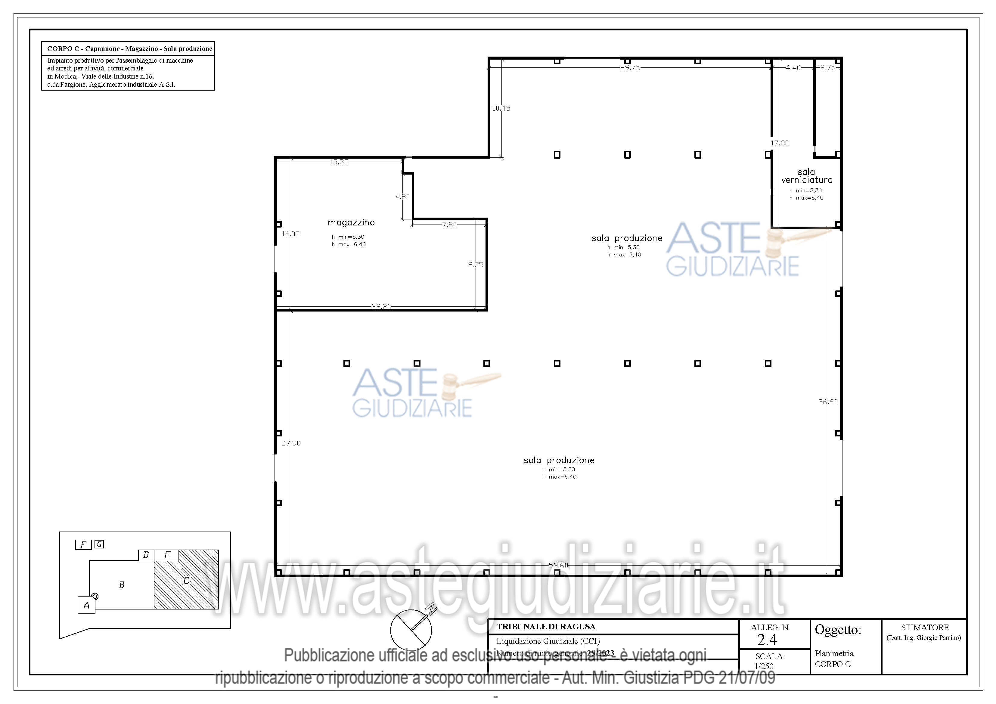
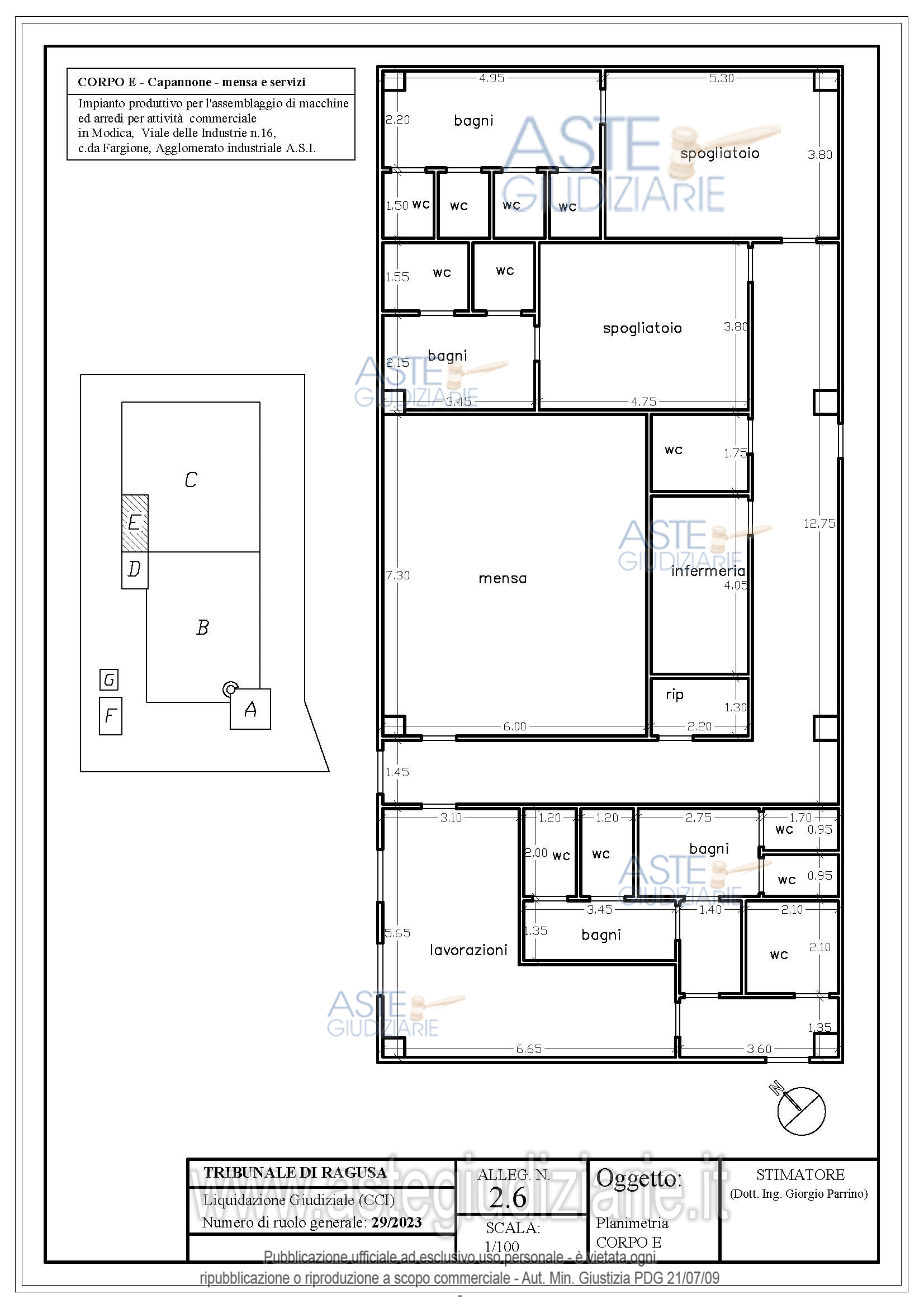
Vendita all'asta Competitiva, con gara telematica sincrona mista - LOTTO 2: A lotto unico: a) Complesso immobiliare realizzato su lotto di circa 14.000 mq, composto da capannone industriale con sala produzione di 2.700 mq, magazzino di 310 mq, sala dimostrazione di circa 160 mq, sala esposizione di circa 2.600 mq, mensa e servizi di circa 240 mq,e palazzina uffici disposta su 3 livelli, alloggio custode; b) beni mobili (Arredi e attrezzature per bar e ristorazione;Minuteria;Beni di magazzino;Macchinari di falegnameria;Arredi e attrezzature da ufficio,N.2 autocarri,N.2 autovetture). Prezzo base € 2.220.000,00 (offerta minima € 2.220.000,00). Data vendita 26/03/2026 ore 16:00. Curatore Avv. Patrizia Gurrieri - Email "segreteria@studiolegalegurrieri.it"; Tel. 0932220000. Rif. Tribunale di Ragusa - Liquidazione giudiziale(cci) n. 29/2023
| Superficie | 14000,00 mq |
|---|---|
| Vani | |
| Bagni | |
| Piano |
| Tipologia di vendita | Giudiziaria |
|---|---|
| Modalità di vendita | Sincrona mista |
| Termine presentazione domande | 25/03/2026 ore 13:00 |
| Data e ora inizio gara | 26/03/2026 ore 16:00 |
- file_download Avviso
- file_download Ordinanza
- file_download Perizia
- file_download Perizia
- file_download Perizia
- file_download Perizia
- file_download Perizia
- file_download Perizia
- file_download Perizia
- file_download Perizia
- file_download Perizia
- file_download Perizia
- file_download Perizia
- file_download Perizia
- file_download Perizia
- file_download Perizia
- file_download Perizia
- file_download Perizia
- file_download Perizia
- file_download Perizia
- file_download Perizia
- file_download Perizia
- file_download Perizia
- file_download Perizia
- file_download Perizia
- file_download Perizia
- file_download Perizia
- file_download Perizia
- file_download Perizia
- file_download Perizia
- file_download Perizia
- file_download Perizia