highlight_off
Riferimento annuncio 316919 info

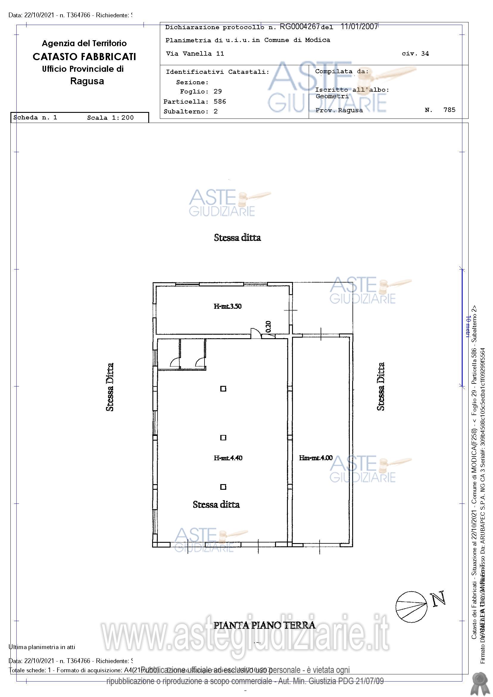
Fabbricato industriale Via Vanella 11 n. 34, 97015 Modica (RG)

367,00
€ 60.000
Vendita all'asta Senza incanto, con gara telematica asincrona - LOTTO 4: Piena proprietà di un fabbricato industriale ubicato al piano terra di Via Vanella 11 n. 34 di circa 367 mq. Prezzo base € 60.000,00 (offerta minima € 60.000,00). Data inizio operazioni di vendita: 03/12/2025 ore 11:00. In caso di più offerte valide si procederà a gara che inizierà il 03/12/2025 ore 11:00 e terminerà il 10/12/2025 ore 11:00. Giudice Dott. Antonio Pianoforte. Rif. Tribunale di Ragusa - Liquidazione controllata(cci) n. 1/2025

Superficie 367,00 mq
Vani
Bagni
Piano

Tipologia di vendita Giudiziaria
Modalità di vendita Asincrona telematica
Termine presentazione offerte 02/12/2025 ore 12:00
Data e ora inizio gara 03/12/2025 ore 11:00
Codice ID astegiudiziarie.it 4337522
367,00
€ 60.000

Ti interessa questa vendita?

north_east

Clicca qui per essere indirizzato alla scheda sul sito di provenienza

Bene di astegiudiziarie.it