highlight_off
Riferimento annuncio 328930 info

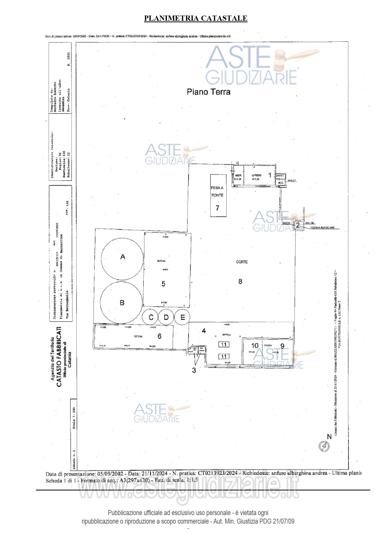
Fabbricato industriale Via Botteghelle, 95040 Mazzarrone CT, Italia, 95040 Mazzarrone (CT)

1165,00
€ 73.275
Vendita all'asta Senza incanto - LOTTO UNICO: Lotto 6 ( ex lotto 10) OPIFICIO INDUSTRIALE SITO A MAZZARRONE AVENTE INGRESSO DAL CIVICO DI VIA BOTTEGHELLE, DISTINTO IN CATASTO AL FOGLIO 94 PART. 635 SUB. 12 CAT. D/7, DI MQ.1165 CON ANNESSI UFFICIO, AUTOCLAVE, N. 5 SILOS, TETTOIA E SPIAZZO DI MANOVRA. Rendita € 2.742,00 . Prezzo base € 73.275,00 (offerta minima € 54.956,25). Data vendita 26/05/2026 ore 09:00. Professionista delegato alla vendita: Avv. Andrea Anfuso Alberghina - Email "avvocatoanfuso@gmail.com"; Tel. 0933/54151; Cell. 339/3635200. Custode Giudiziario: Avv. Andrea Anfuso Alberghina - Email "avvocatoanfuso@gmail.com"; Tel. 0933/54151; Cell. 339/3635200. Rif. Tribunale di Caltagirone - Esecuzione immobiliare post legge 80 n. 96/1984

Superficie 1165,00 mq
Vani
Bagni
Piano

Tipologia di vendita Giudiziaria
Modalità di vendita Presso il venditore
Termine presentazione offerte 01/01/1900 ore 00:00
Data e ora inizio gara 26/05/2026 ore 09:00
Codice ID astegiudiziarie.it 4347177
1165,00
€ 73.275

Ti interessa questa vendita?

north_east

Clicca qui per essere indirizzato alla scheda sul sito di provenienza

Bene di astegiudiziarie.it