highlight_off
Riferimento annuncio 302258 info

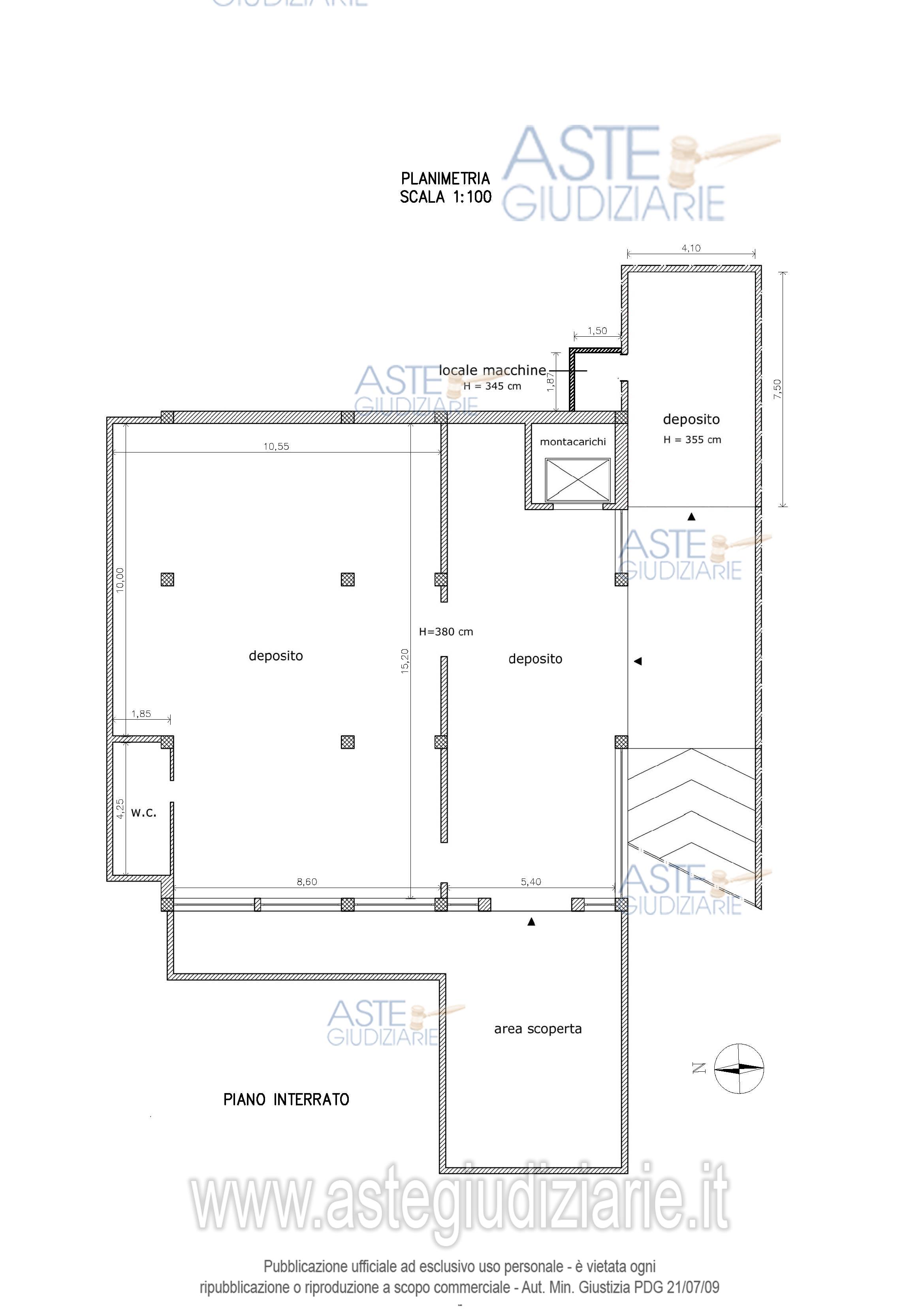
Fabbricato industriale Via Giuseppe Cassano,20-22 Cicerone TA, Italia, 74015 Martina Franca (TA)

720,00
€ 600.750
Vendita in attesa dell'emissione del nuovo bando d'asta. LOTTO UNICO: Piena proprietà di un opificio industriale da terra a tetto costituito da un edificio composto da piano interrato, piano terra, primo e secondo piano superiore, con annessa area di pertinenza, dalla superficiecomplessiva, compresa l’area occupata dal fabbricato, di 788 mq. Ultimo prezzo base € 600.750,00 (offerta minima € 450.563,00). Giudice Francesca Zanna. Professionista delegato alla vendita Avv. Mariateresa Macripò. Custode Giudiziario Avv. Mariateresa Macripò - Email "avv.mariateresamacripo@gmail.com"; Tel. 0993313833. Rif. Tribunale di Taranto - Espropriazione immobiliare (cartabia) n. 306/2023

Superficie 720,00 mq
Vani
Bagni
Piano

Tipologia di vendita Giudiziaria
Modalità di vendita Asincrona telematica
Termine presentazione offerte 01/01/1900 ore 00:00
Data e ora inizio gara 28/10/2025 ore 16:00
Codice ID astegiudiziarie.it 4325580
720,00
€ 600.750

Ti interessa questa vendita?

north_east

Clicca qui per essere indirizzato alla scheda sul sito di provenienza

Bene di astegiudiziarie.it