Riferimento annuncio 318311
        
    
    Fabbricato industriale Via Umberto Migliaccio, 80016 Marano di Napoli NA, Italia, 80016 Marano di Napoli (NA)
                
                4134,00
            
            
€ 624.000    
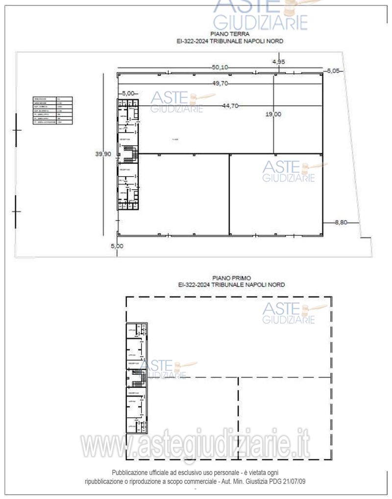
                Vendita all'asta Senza incanto, con gara telematica asincrona - LOTTO UNICO:  Piena proprietà capannone industriale prefabbricato con aree esterne scoperte pavimentate, con servizi connessi, dim. est. m 39,90 x 50,10, sup. cop. 2000 mq ca e h. 9,35 m sotto trave, sup. cop. lorda con volumetria lorda vvp 20.000 mc. Vi è contenzioso in corso con il comune di Marano. Attualmente il bene è nel possesso di terzi senza titolo opponibile alla procedura circostanza su cui pende opposizione. Prezzo base € 624.000,00 (offerta minima € 468.000,00). Data inizio operazioni di vendita: 13/01/2026 ore 10:30. Professionista delegato alla vendita Avv. Giorgio Parisi - Email "info.avv.giorgioparisi@gmail.com"; Tel. 0817877548. Custode Giudiziario  Avv. Giorgio Parisi - Email "info.avv.giorgioparisi@gmail.com"; Tel. 0817877548.  Rif. Tribunale di Napoli Nord - Espropriazione immobiliare (cartabia) n. 322/2024
            
   
| Superficie | 4134,00 mq | 
|---|---|
| Vani | |
| Bagni | |
| Piano | 
| Tipologia di vendita | Giudiziaria | 
|---|---|
| Modalità di vendita | Asincrona telematica | 
| Termine presentazione offerte | 12/01/2026 ore 23:59 | 
| Data e ora inizio gara | 13/01/2026 ore 10:30 | 
 
                         
                         
                         
                         
                         
                         
                         
                         
                         
                         
                         
                         
                         
                         
                        