highlight_off
Riferimento annuncio 135926 info

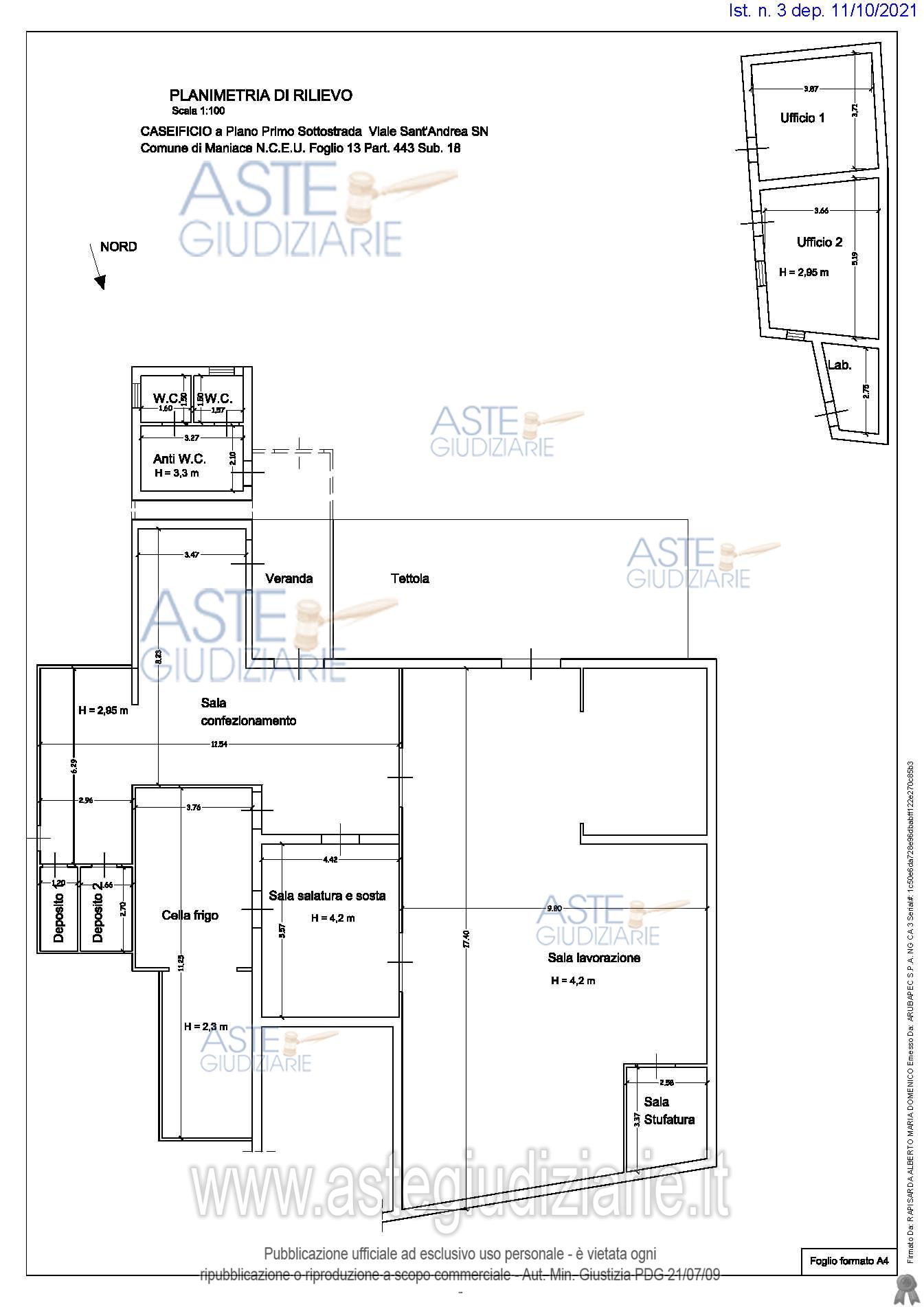
Fabbricato industriale Via Sant'Andrea, 95030 Maniace (CT)

2082,00
€ 87.771
Vendita all'asta Senza incanto, con gara telematica sincrona mista - LOTTO 3: Caseificio posto al piano seminterrato di un edificio a due piani fuori terra e uno seminterrato. Composto da una sala di lavorazione, sala salatura e sosta, cella frigo, alcuni vani deposito e aree di transito, si sono inoltre dei manufatti adibiti a uffici, a laboratorio e a servizi igienici. Tratto di terreno di 3260 mq con entrostante struttura in acciaio e pannelli coibentati composta essenzialmente da celle frigorifere/locali di stoccaggio. Un terzo indiviso di tratto di terreno di 1592 mq. Prezzo base € 87.771,10 (offerta minima € 65.829,00). Data vendita 22/12/2025 ore 09:00. Giudice Maria Acagnino. Professionista delegato alla vendita Avv. Andrea Saia - Email "avv.andreasaia@gmail.com"; Cell. 3465321666. Custode Giudiziario Andrea Saia. Rif. Tribunale di Catania - Esecuzione immobiliare post legge 80 n. 1002/2019

Superficie 2082,00 mq
Vani
Bagni
Piano

Tipologia di vendita Giudiziaria
Modalità di vendita Sincrona mista
Termine presentazione offerte 19/12/2025 ore 13:00
Data e ora inizio gara 22/12/2025 ore 09:00
Codice ID astegiudiziarie.it 4243655
2082,00
€ 87.771

Ti interessa questa vendita?

north_east

Clicca qui per essere indirizzato alla scheda sul sito di provenienza

Bene di astegiudiziarie.it