highlight_off
Riferimento annuncio 315777 info

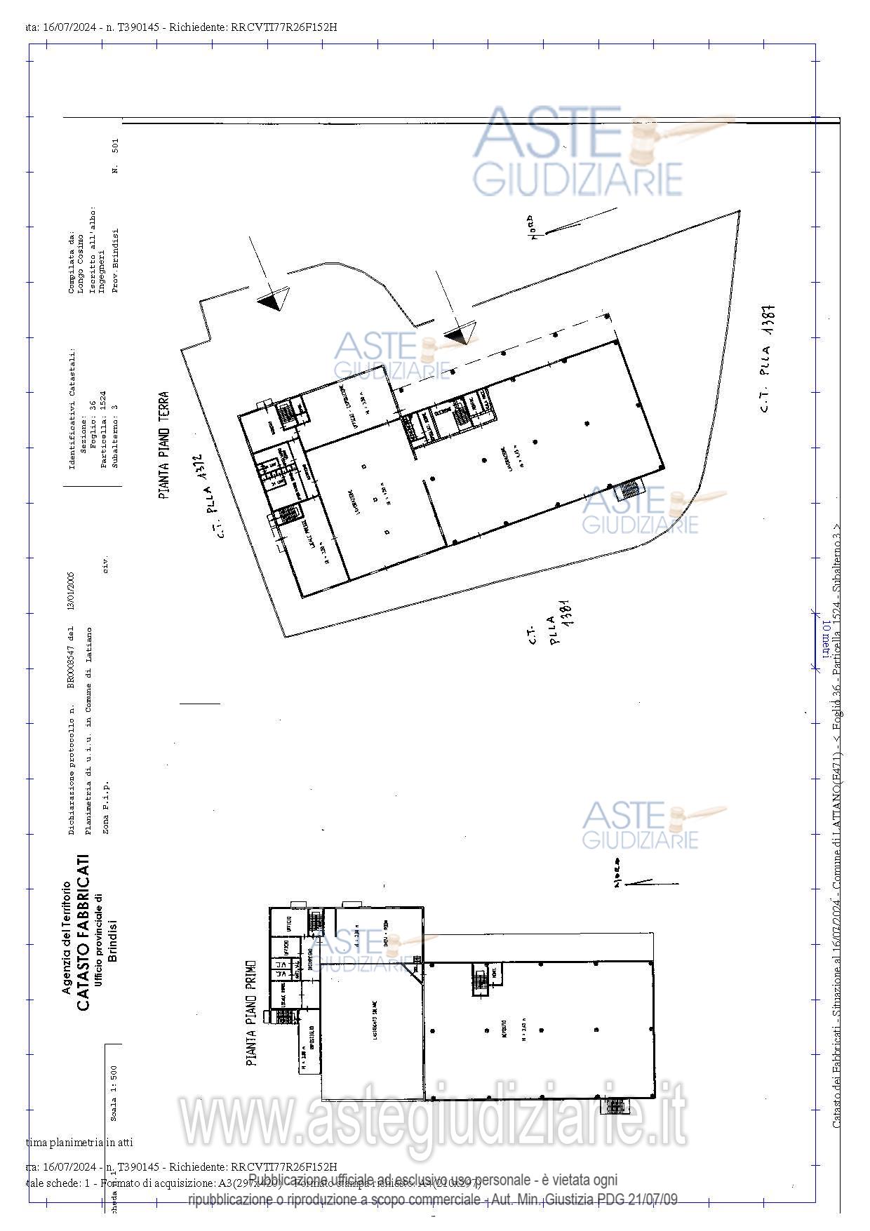
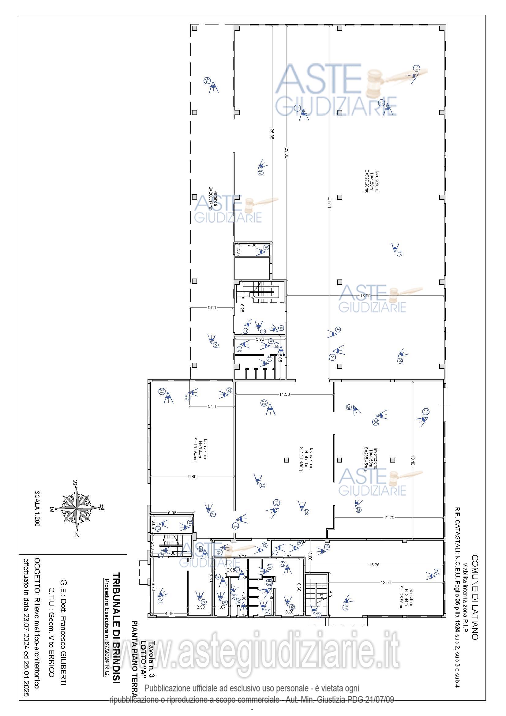
Fabbricato industriale c.da Romatizza, 72022 Latiano (BR)

3596,00
€ 601.275
Vendita all'asta Senza incanto, con gara telematica asincrona - LOTTO UNICO: PIENA PROPRIETA’ DEL FABBRICATO AD USO INDUSTRIALE ED ANNESSA ABITAZIONE, sita in ZONA PIP del comune di LATIANO (BR), località ROMATIZZA, costituito da FABBRICATO A DESTINAZIONE ABITATIVA, piano 1, categoria A/3, classe 5, consistenza 4,5 vani, sup. totale 92 MQ, totale escluso aree scoperte 91 MQ, rendita catastale €.3741,85;e FABBRICATO A DESTINAZIONE OPIFICIO, piano T-1, categoria D/1, rendita catastale € 22.322,50. Prezzo base € 601.275,00 (offerta minima € 450.960,00). Data inizio operazioni di vendita: 09/03/2026 ore 13:20. Professionista delegato alla vendita Avv. Vincenza Catamerò - Email "avv.vincenzacatamero@gmail.com"; Cell. 3386691446. Custode Giudiziario Avv. Vincenza Catamerò - Email "avv.vincenzacatamero@gmail.com"; Cell. 3386691446. Rif. Tribunale di Brindisi - Espropriazione immobiliare (cartabia) n. 67/2024

Superficie 3596,00 mq
Vani
Bagni
Piano

Tipologia di vendita Giudiziaria
Modalità di vendita Asincrona telematica
Termine presentazione offerte 01/01/1900 ore 00:00
Data e ora inizio gara 09/03/2026 ore 13:20
Codice ID astegiudiziarie.it 4336430
3596,00
€ 601.275

Ti interessa questa vendita?

north_east

Clicca qui per essere indirizzato alla scheda sul sito di provenienza

Bene di astegiudiziarie.it