highlight_off
Riferimento annuncio 215757 info

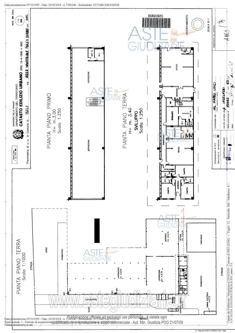
Fabbricato industriale Zona Industriale Loc. Perda e Quaddu, 08033 Isili (SU)

12984,00
4
€ 1.300.000
Vendita in attesa dell'emissione del nuovo bando d'asta. LOTTO 5: Quota pari al 100% della piena proprietà del Fabbricato ad uso industriale sito nel Comune di Isili, Zona Industriale Loc. Perda e Quaddu, distinto al N.C.E.U. al Fg. 12 mapp. 368 sub 8 categoria D/1, foglio 12 mapp. 368 sub 9 categoria lastrico solare di 9.970 mq, Fg. 12 mapp. 372 sub 1 categoria D/1 e foglio 12 mapp. 372 sub 2 categoria lastrico solare di 3.014 mq, insistenti sul terreno distinto al N.C.T. Fg. 12 mapp. 368, superficie di 24.436 mq e N.C.T., Fg. 12 mapp. 172, superficie di 6.054 mq. Ultimo prezzo base € 1.300.000,00 (offerta minima € 1.300.000,00). Curatore Dott. Giuseppe Marongiu - Email "studio@studiomarongiu.it"; Tel. 0704560865. Rif. Tribunale di Cagliari - Fallimentare (nuovo rito) n. 144/2019

Superficie 12984,00 mq
Vani
Bagni 4
Piano

Tipologia di vendita Giudiziaria
Modalità di vendita Asincrona telematica
Termine presentazione offerte 23/09/2025 ore 13:00
Data e ora inizio gara 24/09/2025 ore 10:00
Codice ID astegiudiziarie.it 4265504
12984,00
4
€ 1.300.000

Ti interessa questa vendita?

north_east

Clicca qui per essere indirizzato alla scheda sul sito di provenienza

Bene di astegiudiziarie.it