highlight_off
Riferimento annuncio 146425 info

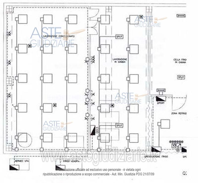
Fabbricato industriale Via della Muratella, 1470, 00054 Fiumicino (RM)

16317,92
€ 1.607.445
Vendita in attesa dell'emissione del nuovo bando d'asta. LOTTO Unico: Fabbricato industriale vocato alla lavorazione e stoccaggio in aree refrigerate, dei prodotti agricoli, con area uffici e area destinata al personale: locali spogliatoio, mensa, servizi igienici separati per genere e officina. Fabbricato destinato a cabina elettrica. Fabbricato destinato alla lavorazione dei prodotti agricoli e celle frigorifere per lo stoccaggio. Area di pertinenza destinata alla movimentazione dei mezzi e a giardino. Ultimo prezzo base € 1.607.445,00. Professionista delegato alla vendita Not. Matteo Marrone. Rif. Ente Ministero delle Imprese e del Made in Italy - Liquidazione coatta n. 369/2019

Superficie 16317,92 mq
Vani
Bagni
Piano

Tipologia di vendita Giudiziaria
Modalità di vendita Presso il venditore
Termine presentazione offerte 01/01/1900 ore 00:00
Data e ora inizio gara 21/05/2025 ore 15:00
Codice ID astegiudiziarie.it 4251765
16317,92
€ 1.607.445

Ti interessa questa vendita?

north_east

Clicca qui per essere indirizzato alla scheda sul sito di provenienza

Bene di astegiudiziarie.it