highlight_off
Riferimento annuncio 328829 info

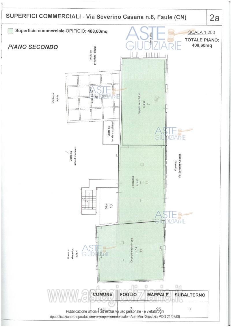
Fabbricato industriale Via Severino Casana, 10, 12030 Faule CN, Italia, 12030 Faule (CN)

€ 354.500
Vendita all'asta Senza incanto, con gara telematica sincrona - LOTTO 2: OPIFICIO INDUSTRIALE per la macinazione e la produzione delle farine. Il complesso molitorio è costituito da un impianto completo e preposto alla macinazione di grano tenero e duro della potenzialità di 120 ton/24 ore ed è stato parzialmente rinnovato nell’anno 2003 .Terreno di pertinenza nel Comune di Faule (CN), Terreno di pertinenza nel Comune di Faule (CN), Oltre al B.C.N.C. al foglio 3, particella 95, Sub 4 (bene comune non censibile con i Sub 5, 6 e 7) . Prezzo base € 354.500,00 (offerta minima € 265.875,00). Data vendita 30/04/2026 ore 11:00. Curatore: Dott. Anna Isoardi - Tel. 0171/631706. Rif. Tribunale di Cuneo - Liquidazione giudiziale(cci) n. 6/2023

Tipologia di vendita Giudiziaria
Modalità di vendita Sincrona telematica
Termine presentazione offerte 29/04/2026 ore 12:00
Data e ora inizio gara 30/04/2026 ore 11:00
Codice ID astegiudiziarie.it 4347126
€ 354.500

Ti interessa questa vendita?

north_east

Clicca qui per essere indirizzato alla scheda sul sito di provenienza

Bene di astegiudiziarie.it