highlight_off
Riferimento annuncio 313225 info

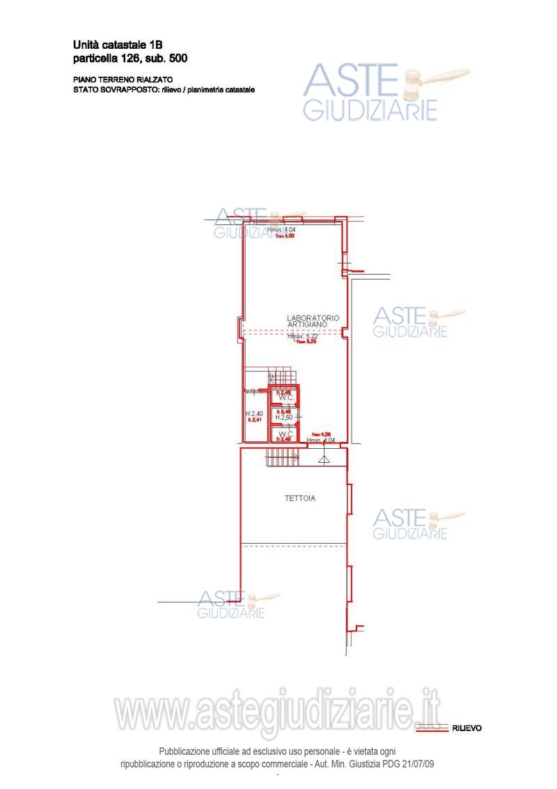
Fabbricato industriale Via Piovola, 155, 50053 Empoli FI, Italia, 50053 Empoli (FI)

€ 356.250
Vendita all'asta Senza incanto, con gara telematica sincrona mista - LOTTO 6: Complesso immobiliare originariamente destinato alla produzione ed alla vendita di vini, costituito da più corpi di fabbrica contigui tra loro.Secondo le risultanze catastali, il sedime dell'intera proprietà si sviluppa per oltre 3.880 mq. Prezzo base € 356.250,00 (offerta minima € 267.187,50). Data vendita 17/12/2025 ore 15:30. Giudice Dott. Rosa Selvarolo. Professionista delegato alla vendita Dott. Alessandro Torcini - Email "torcini@dottoricommercialisti.it". Custode Giudiziario Dott. Andrea Mantelli - Email "mantelli@dottoricommercialisti.it"; Tel. 057172755. Curatore Dott. Gaia Ceccherini - Email "gaia.ceccherini@gmail.com"; Tel. 0558336295. Rif. Tribunale di Firenze - Fallimentare (nuovo rito) n. 76/2017

Tipologia di vendita Giudiziaria
Modalità di vendita Sincrona mista
Termine presentazione offerte 16/12/2025 ore 12:00
Data e ora inizio gara 17/12/2025 ore 15:30
Codice ID astegiudiziarie.it 4201043
€ 356.250

Ti interessa questa vendita?

north_east

Clicca qui per essere indirizzato alla scheda sul sito di provenienza

Bene di astegiudiziarie.it