highlight_off
Riferimento annuncio 238627 info

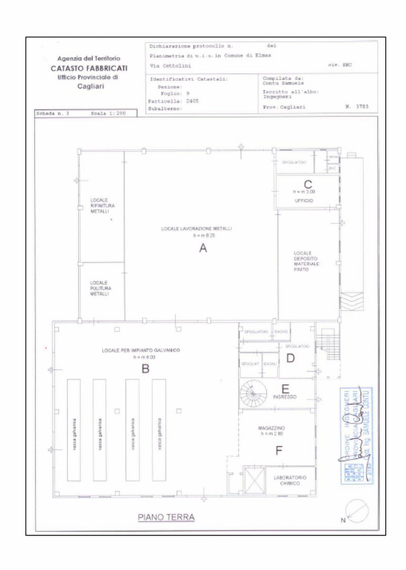
Fabbricato industriale via Cettolini snc, 09030 Elmas (CA)

2080,00
€ 870.333
Vendita all'asta Senza incanto, con gara telematica asincrona - LOTTO 1: Complesso di due fabbricati. Prezzo base € 870.333,00 (offerta minima € 652.750,00). Data inizio operazioni di vendita: 28/05/2026 ore 16:00. Giudice: Dott. Valentina Frongia. Professionista delegato alla vendita: Dott. Giancarlo Dessi - Email "giancarlo@dessitelmon.it"; Tel. 070/42237. Custode Giudiziario: Lino Icilio Felice Fresi - Email "ivg.visiteimmobili@tiscali.it"; Tel. 070/2299036. Rif. Tribunale di Cagliari - Esecuzione immobiliare post legge 80 n. 229/2007

Superficie 2080,00 mq
Vani
Bagni
Piano

Tipologia di vendita Giudiziaria
Modalità di vendita Asincrona telematica
Termine presentazione offerte 27/05/2026 ore 12:00
Data e ora inizio gara 28/05/2026 ore 16:00
Codice ID astegiudiziarie.it 117526
2080,00
€ 870.333

Ti interessa questa vendita?

north_east

Clicca qui per essere indirizzato alla scheda sul sito di provenienza

Bene di astegiudiziarie.it