highlight_off
Riferimento annuncio 272950 info

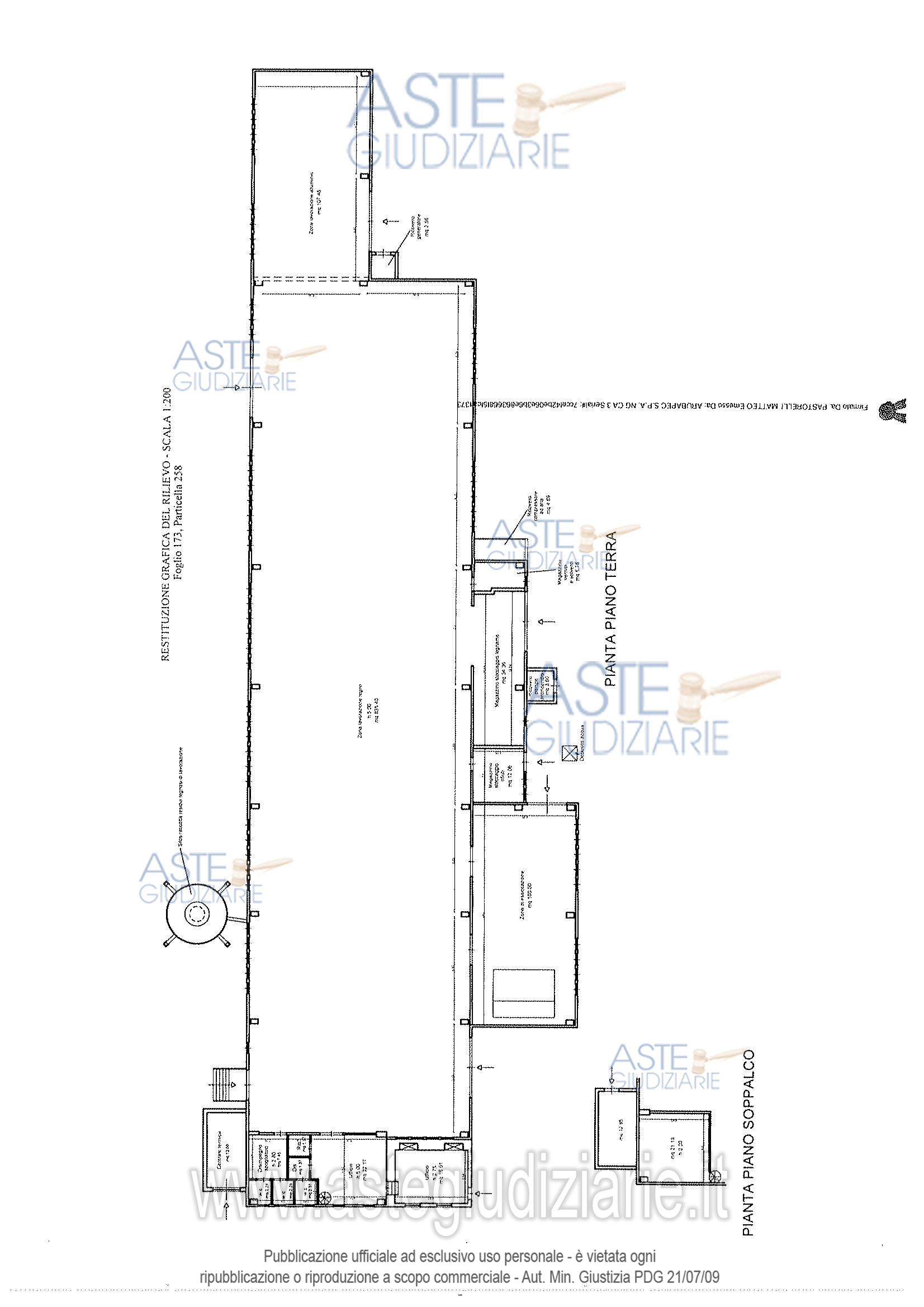
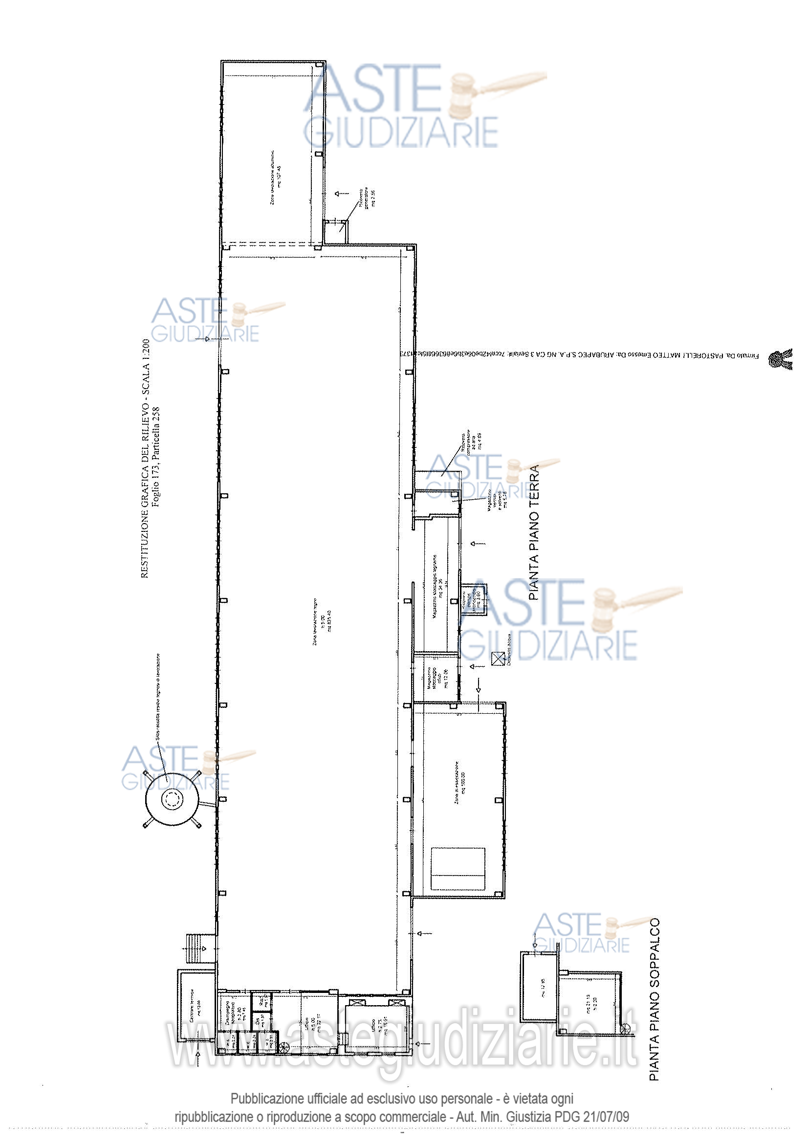
Fabbricato industriale Frazione Monticello Amiata Loc. La Concia, 58044 Cinigiano (GR)

€ 103.200
Vendita all'asta Senza incanto, con gara telematica asincrona - LOTTO UNICO: Piena proprietà di capannone artigianale ubicato nel Comune di Cinigiano, Fraz. Monticello Amiata, Loc. La Concia, a circa 1 km dalla Frazione di Monticello Amiata e circa 12 km da Cinigiano. Prezzo base € 103.200,00 (offerta minima € 77.400,00). Data inizio operazioni di vendita: 17/12/2025 ore 09:30. Professionista delegato alla vendita Dott. Stefano Rossi - Email "studio.dott.stefano.rossi@gmail.com"; Cell. 3391348544; Tel. 056423211. Custode Giudiziario Dott. Stefano Rossi - Email "studio.dott.stefano.rossi@gmail.com"; Cell. 3391348544; Tel. 056423211. Rif. Tribunale di Grosseto - Esecuzione immobiliare post legge 80 n. 161/2017

Tipologia di vendita Giudiziaria
Modalità di vendita Asincrona telematica
Termine presentazione offerte 01/01/1900 ore 00:00
Data e ora inizio gara 17/12/2025 ore 09:30
Codice ID astegiudiziarie.it 4302695
€ 103.200

Ti interessa questa vendita?

north_east

Clicca qui per essere indirizzato alla scheda sul sito di provenienza

Bene di astegiudiziarie.it