highlight_off
Riferimento annuncio 156649 info

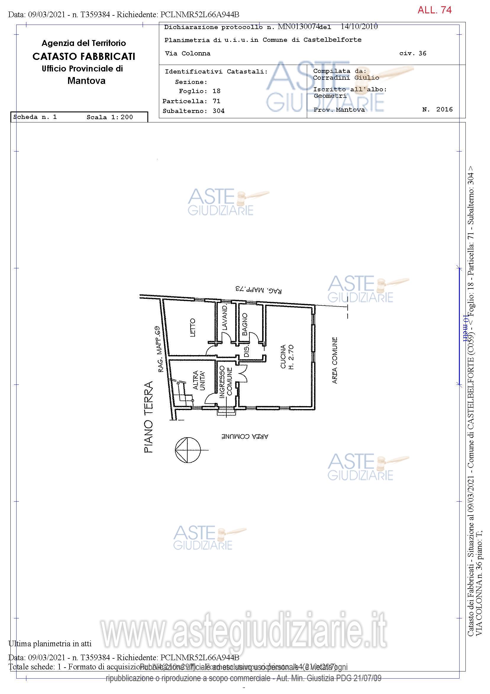
Fabbricato industriale Via Colonna, 36, 46032 Castelbelforte MN, Italia, 46032 Castelbelforte (MN)

1240,00
€ 728.663
Vendita all'asta Senza incanto, con gara telematica sincrona mista - LOTTO UNICO: Piena proprietà per la quota di 1/1 di un complesso aziendale composto da più manufatti industriali, nonché tre appartamenti e una cantina. Prezzo base € 728.663,00 (offerta minima € 546.498,00). Data vendita 11/02/2026 ore 15:00. Giudice Dott. Francesca Arrigoni. Professionista delegato alla vendita Not. Giampiero Pondrano Altavilla - Email "gpondranoaltavilla@notariato.it". Custode Giudiziario Sovemo Srl Istituto Vendite Giudiziarie Di Mantova - Email "immobiliaremantova@sovemo.com"; Tel. 0376220694. Rif. Tribunale di Mantova - Esecuzione immobiliare post legge 80 n. 174/2020

Superficie 1240,00 mq
Vani
Bagni
Piano

Tipologia di vendita Giudiziaria
Modalità di vendita Sincrona mista
Termine presentazione offerte 06/02/2026 ore 12:00
Data e ora inizio gara 11/02/2026 ore 15:00
Codice ID astegiudiziarie.it 4260706
1240,00
€ 728.663

Ti interessa questa vendita?

north_east

Clicca qui per essere indirizzato alla scheda sul sito di provenienza

Bene di astegiudiziarie.it