Riferimento annuncio 220652
        
    
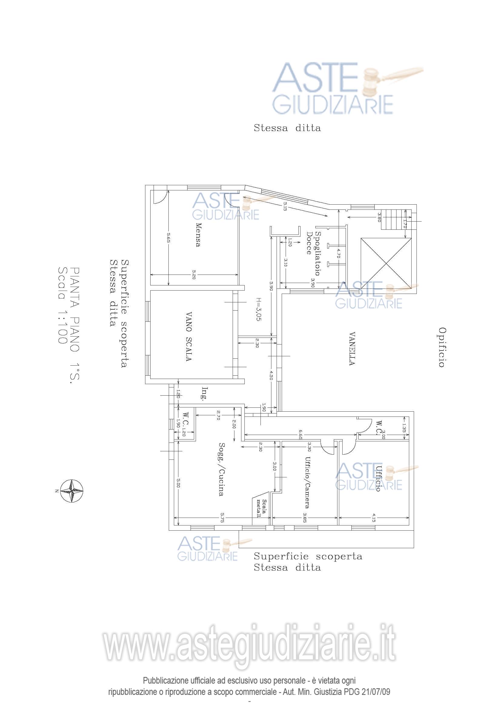
    Fabbricato industriale via Gianni Agnelli, 84081 Baronissi (SA)
                
                3235,00
            
            
€ 1.810.000    
                Vendita all'asta Competitiva, con gara telematica asincrona - LOTTO UNICO:  Opificio industriale. Prezzo base € 1.810.000,00 (offerta minima € 1.810.000,00). Data inizio operazioni di vendita: 25/11/2025 ore 12:00. Rif. Tribunale di Nocera Inferiore - Nuovo concordato preventivo n. 7/2019
            
   
| Superficie | 3235,00 mq | 
|---|---|
| Vani | |
| Bagni | |
| Piano | 
| Tipologia di vendita | Giudiziaria | 
|---|---|
| Modalità di vendita | Asincrona telematica | 
| Termine presentazione domande | 24/11/2025 ore 12:00 | 
| Data e ora inizio gara | 25/11/2025 ore 12:00 | 
 
                         
                         
                         
                         
                         
                         
                         
                         
                         
                         
                         
                         
                         
                         
                         
                         
                         
                         
                         
                         
                         
                         
                         
                         
                         
                         
                         
                         
                         
                         
                         
                         
                        