highlight_off
Riferimento annuncio 126463 info

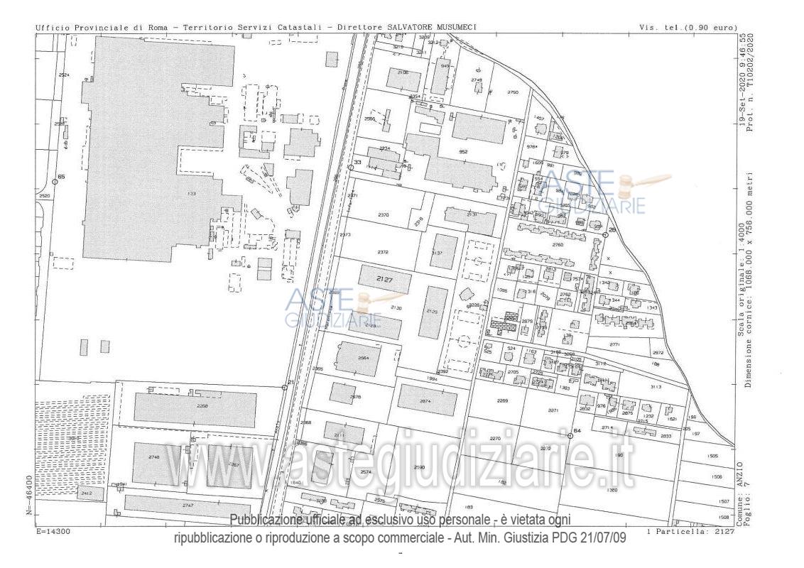
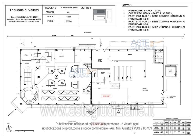
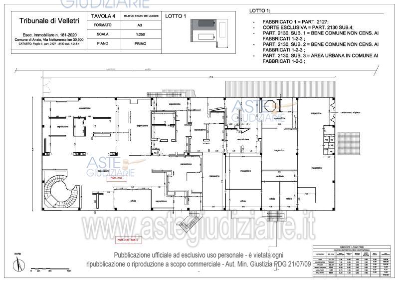
Fabbricato industriale Via Nettunense, 00042 Anzio (RM)

4630,00
€ 1.241.000
Vendita all'asta Senza incanto, con gara telematica asincrona - LOTTO 1: Fabbricato industriale con annessa corte esclusiva. Prezzo base € 1.241.000,00 (offerta minima € 930.750,00). Data inizio operazioni di vendita: 16/04/2026 ore 10:00. Professionista delegato alla vendita Avv. Bruna Monaco - Email "avvmonacobruna@gmail.com"; Tel. 0696153079. Custode Giudiziario Avv. Bruna Monaco - Email "avvmonacobruna@gmail.com"; Tel. 0696153079. Rif. Tribunale di Velletri - Esecuzione immobiliare post legge 80 n. 181/2020

Superficie 4630,00 mq
Vani
Bagni
Piano

Tipologia di vendita Giudiziaria
Modalità di vendita Asincrona telematica
Termine presentazione offerte 15/04/2026 ore 23:59
Data e ora inizio gara 16/04/2026 ore 10:00
Codice ID astegiudiziarie.it 4235567
4630,00
€ 1.241.000

Ti interessa questa vendita?

north_east

Clicca qui per essere indirizzato alla scheda sul sito di provenienza

Bene di astegiudiziarie.it