highlight_off
Riferimento annuncio 328685 info

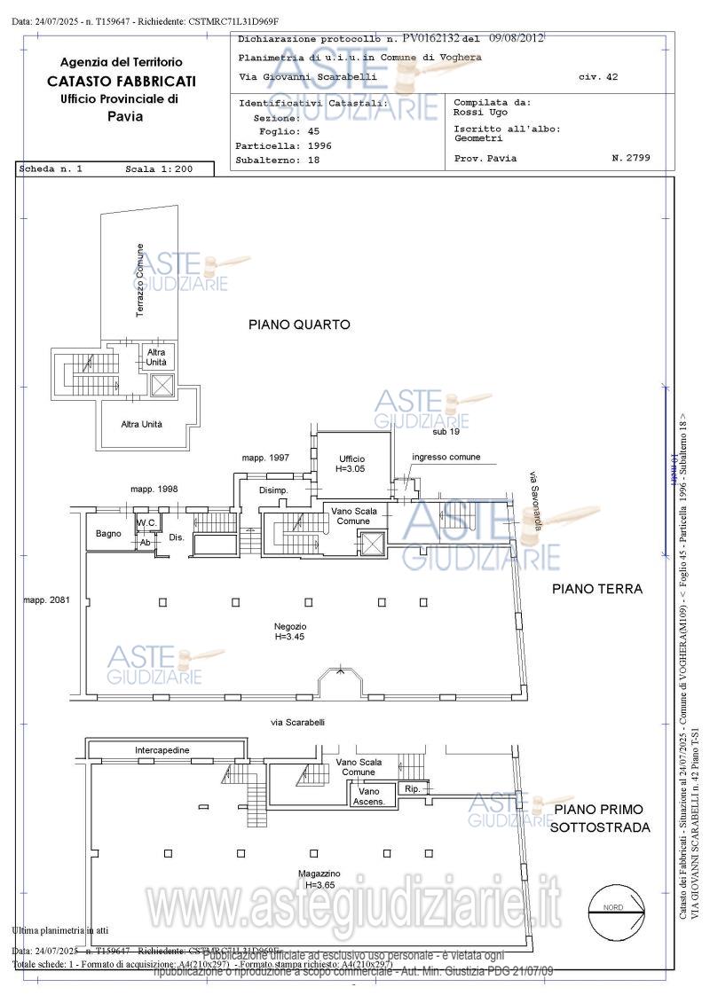
Fabbricato commerciale via Scarabelli angolo via Savonarola, 48, 27058 Voghera (PV)

€ 408.500
Vendita all'asta Senza incanto, con gara telematica asincrona - LOTTO UNICO: Locale commerciale posto al piano terra di un fabbricato di 3 piani f.t. facente parte del Condominio “Columbia”, composto da ampio spazio dedicato a zona esposizione e vendita con zona ufficio, bagno, servizio igienico e ulteriore locale uso ufficio a quota rialzata, collegato internamente da scala e montacarichi al sottostante piano seminterrato dove si trova un ulteriore ampio locale magazzino suddiviso in 4 vani distinti e collegati tra loro. Prezzo base € 408.500,00 (offerta minima € 306.375,00). Data inizio operazioni di vendita: 29/04/2026 ore 11:00. Giudice: Dott. Erminio Rizzi. Professionista delegato alla vendita: Dott. Isabella Nana - Email "nanais00@nanaisabella.191.it"; Tel. 0382/539152. Custode Giudiziario: Avv. Istituto Vendite Giudiziarie Srl Ifir Piemonte - Email "amministrazionevigevano@ifir.it"; Tel. 0381/691137. Rif. Tribunale di Pavia - Espropriazione immobiliare (cartabia) n. 92/2025

Tipologia di vendita Giudiziaria
Modalità di vendita Asincrona telematica
Termine presentazione offerte 01/01/1900 ore 00:00
Data e ora inizio gara 29/04/2026 ore 11:00
Codice ID astegiudiziarie.it 4347006
€ 408.500

Ti interessa questa vendita?

north_east

Clicca qui per essere indirizzato alla scheda sul sito di provenienza

Bene di astegiudiziarie.it