highlight_off
Riferimento annuncio 312790 info

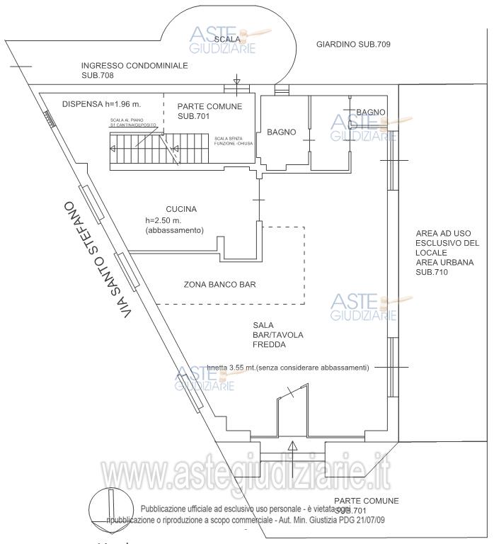
Fabbricato commerciale Via Santo Stefano 109, 20057 Vedano al Lambro (MB)

84,30
€ 174.000
Vendita all'asta Senza incanto, con gara telematica sincrona - LOTTO 1: Immobile adibito a bar di mq. 84,30, al piano terra con Cantina 3 vani e altro terreno composto da area esterna funzionale all'attività. "Per l’assistenza alla partecipazione all’asta dei dei beni immobili e mobili ci si puo’ rivolgere all’I.V.G. di Monza. Il Tribunale di Monza non ha conferito alcun incarico a intermediari/ agenzie immobiliari per la pubblicità giudiziaria e l’assistenza alla partecipazione all’asta”. Prezzo base € 174.000,00 (offerta minima € 130.500,00). Data vendita 23/01/2026 ore 10:00. Giudice Arianna Toppan. Professionista delegato alla vendita Dott. Ciro Fiore. Custode Giudiziario Dott. Ciro Fiore - Email "fiore@studio-commercialisti.it"; Tel. 0392720446. Rif. Tribunale di Monza - Espropriazione immobiliare (cartabia) n. 660/2023

Superficie 84,30 mq
Vani
Bagni
Piano

Tipologia di vendita Giudiziaria
Modalità di vendita Sincrona telematica
Termine presentazione offerte 21/01/2026 ore 13:00
Data e ora inizio gara 23/01/2026 ore 10:00
Codice ID astegiudiziarie.it 4334284
84,30
€ 174.000

Ti interessa questa vendita?

north_east

Clicca qui per essere indirizzato alla scheda sul sito di provenienza

Bene di astegiudiziarie.it