highlight_off
Riferimento annuncio 320514 info

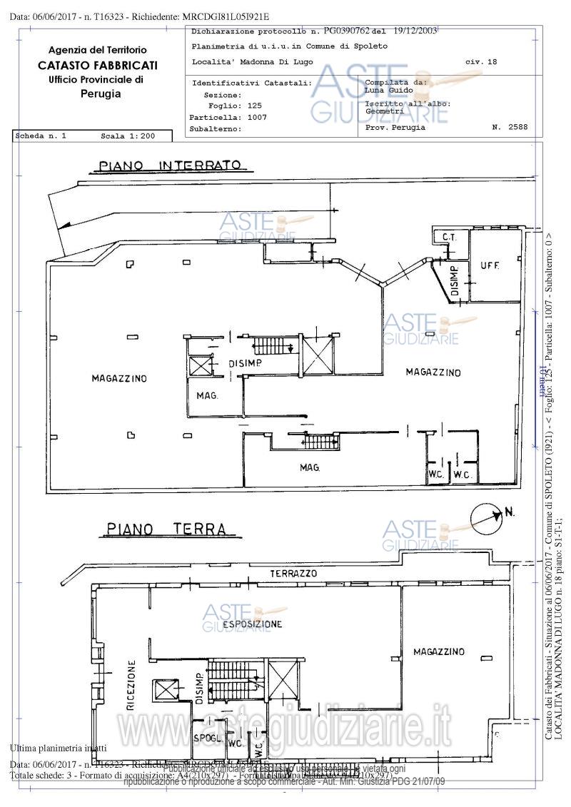
Fabbricato commerciale Via Serafina Borgiani, 8, 06049 Spoleto PG, Italia, 06049 Spoleto (PG)

1103,00
€ 388.000
Vendita all'asta Senza incanto, con gara telematica sincrona mista - LOTTO UNICO: SPOLETO (PG) LOC. MADONNA DI LUGO, VIA S. BORGIANI N. 8. Prezzo base € 388.000,00 (offerta minima € 291.000,00). Data vendita 29/05/2026 ore 11:00. Giudice Dott. Alberto Cappellini. Professionista delegato alla vendita Avv. Daniela Mannaioli - Email "danielamannaioli@libero.it"; Tel. 0742960193. Custode Giudiziario Ivg Perugia - Email "visite@ivgumbria.com"; Tel. 0755913525. Rif. Tribunale di Spoleto - Esecuzione immobiliare post legge 80 n. 95/2018

Superficie 1103,00 mq
Vani
Bagni
Piano

Tipologia di vendita Giudiziaria
Modalità di vendita Sincrona mista
Termine presentazione offerte 01/01/1900 ore 00:00
Data e ora inizio gara 29/05/2026 ore 11:00
Codice ID astegiudiziarie.it 4340430
1103,00
€ 388.000

Ti interessa questa vendita?

north_east

Clicca qui per essere indirizzato alla scheda sul sito di provenienza

Bene di astegiudiziarie.it