highlight_off
Riferimento annuncio 56403 info

Fabbricato commerciale Via Talete, 09047 Selargius CA, Italia, 09047 Selargius (CA)

212,00
€ 102.816
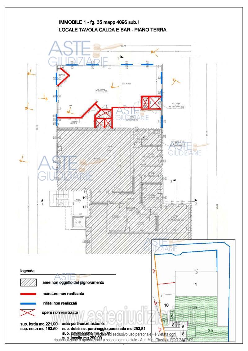
Vendita all'asta Senza incanto, con gara telematica asincrona - LOTTO 1: Unità immobiliare sita in Comune di Selargius (CA) Via Talete, distinta al C.F.al foglio 35 mappale 4096 sub. 1, p. T, al piano terra nella porzione a sinistra della scala esterna del maggior fabbricato (guardandolo dalla via Talete).L’immobile ha destinazione bar e tavola calda; si sviluppa per una superficie lorda di mq 212,00 (netta di mq 195,00) con annessa una porzione del lotto che circonda l’immobile su tre lati della superficie di mq. 579,81.l’immobile non risulta completato. Prezzo base € 102.816,00 (offerta minima € 77.112,00). Data inizio operazioni di vendita: 13/01/2026 ore 16:00. Giudice Dott. Silvia Cocco. Professionista delegato alla vendita Avv. Marco Di Fortunato - Cell. 3356185295. Custode Giudiziario Ivg Di Cagliari - Email "ivg.visiteimmobili@tiscali.it"; Tel. 0702299036. Rif. Tribunale di Cagliari - Esecuzione immobiliare post legge 80 n. 266/2015

Superficie 212,00 mq
Vani
Bagni
Piano

Tipologia di vendita Giudiziaria
Modalità di vendita Asincrona telematica
Termine presentazione offerte 12/01/2026 ore 16:00
Data e ora inizio gara 13/01/2026 ore 16:00
Codice ID astegiudiziarie.it 4177040
212,00
€ 102.816

Ti interessa questa vendita?

north_east

Clicca qui per essere indirizzato alla scheda sul sito di provenienza

Bene di astegiudiziarie.it