highlight_off
Riferimento annuncio 317158 info

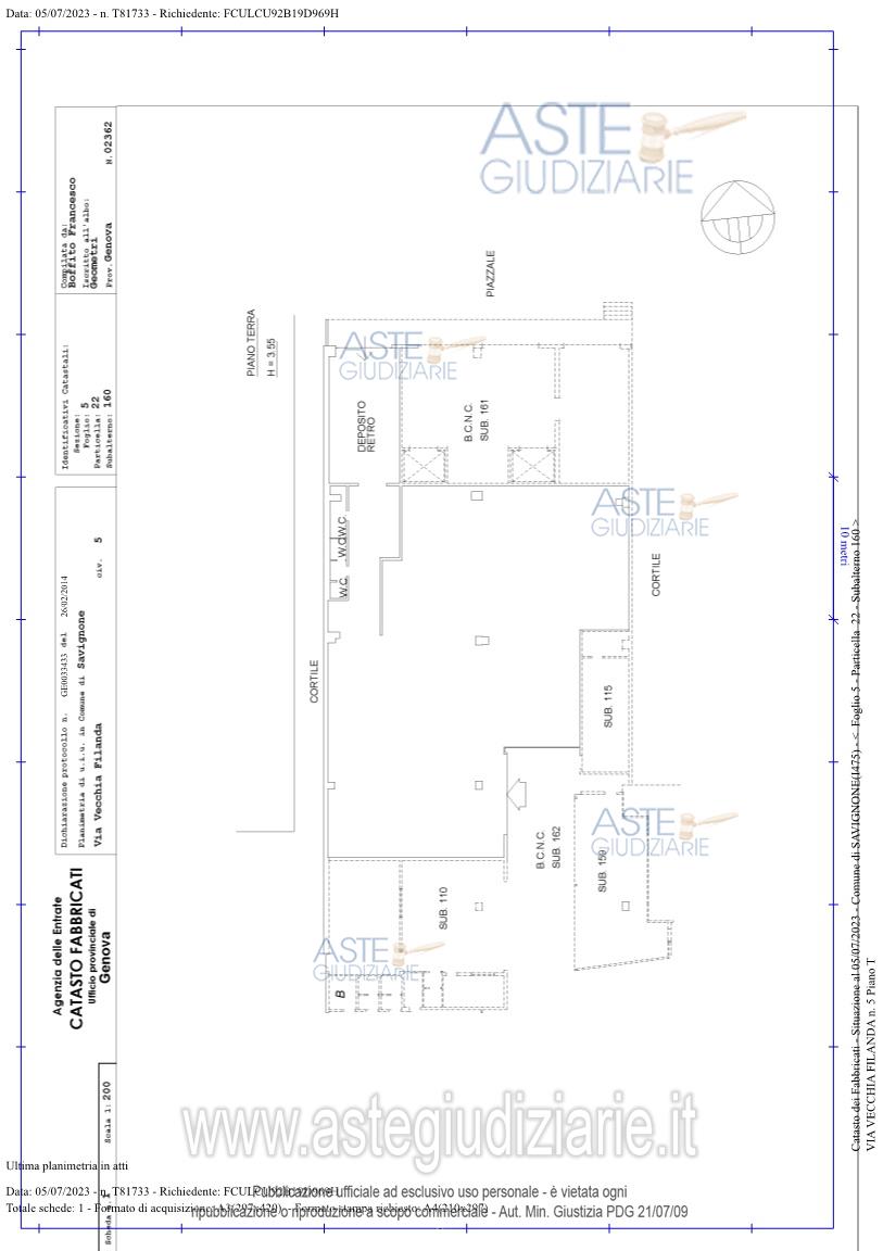
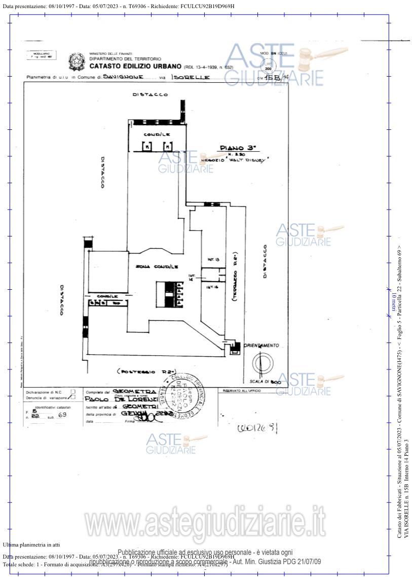
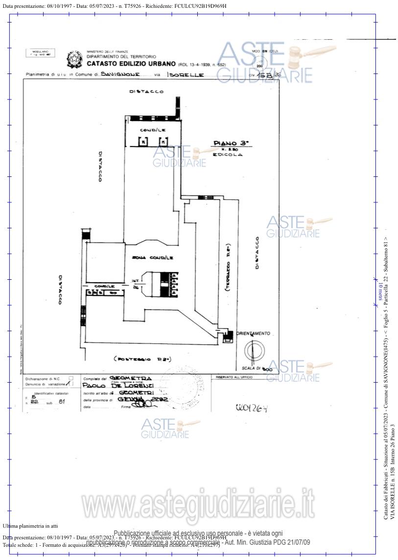
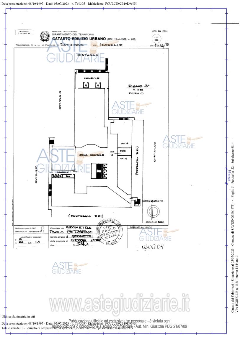
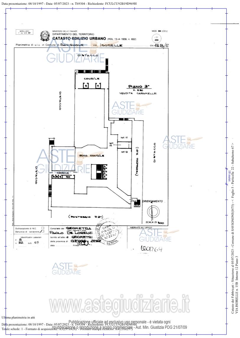
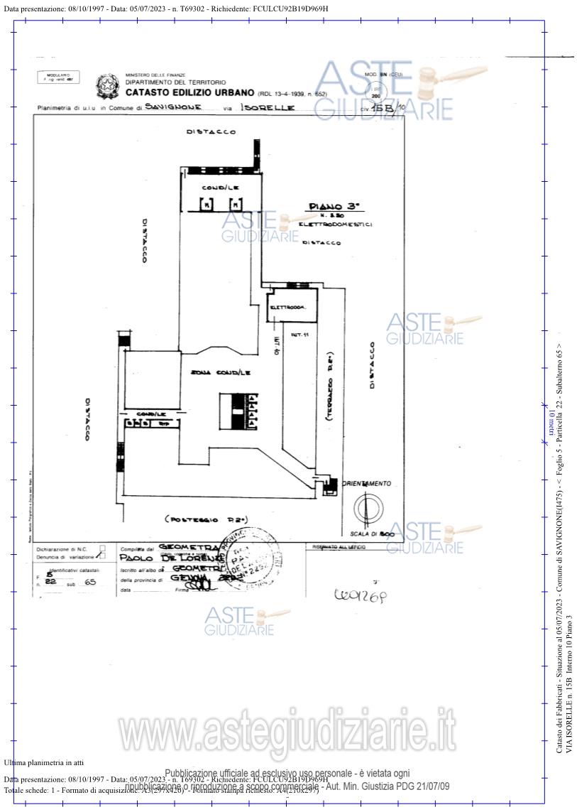
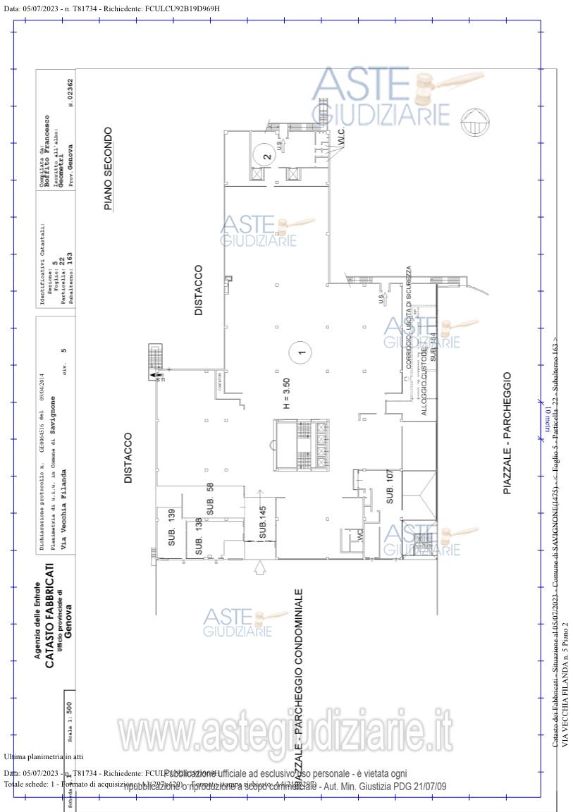
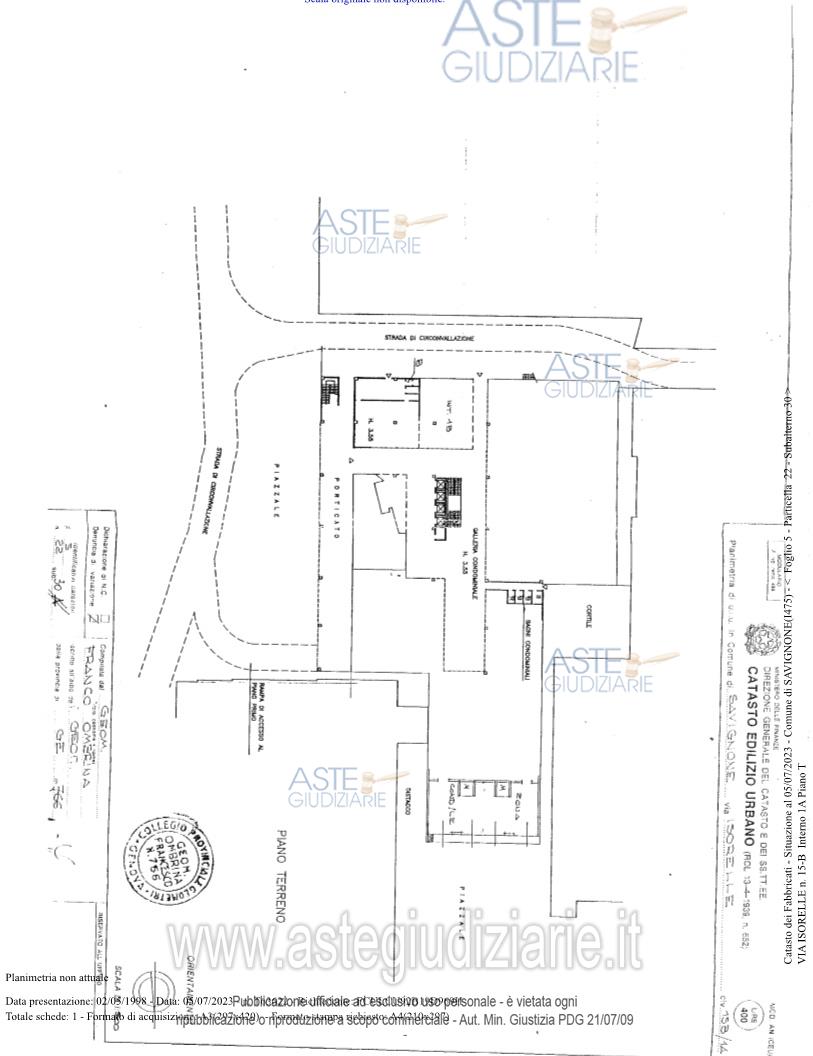
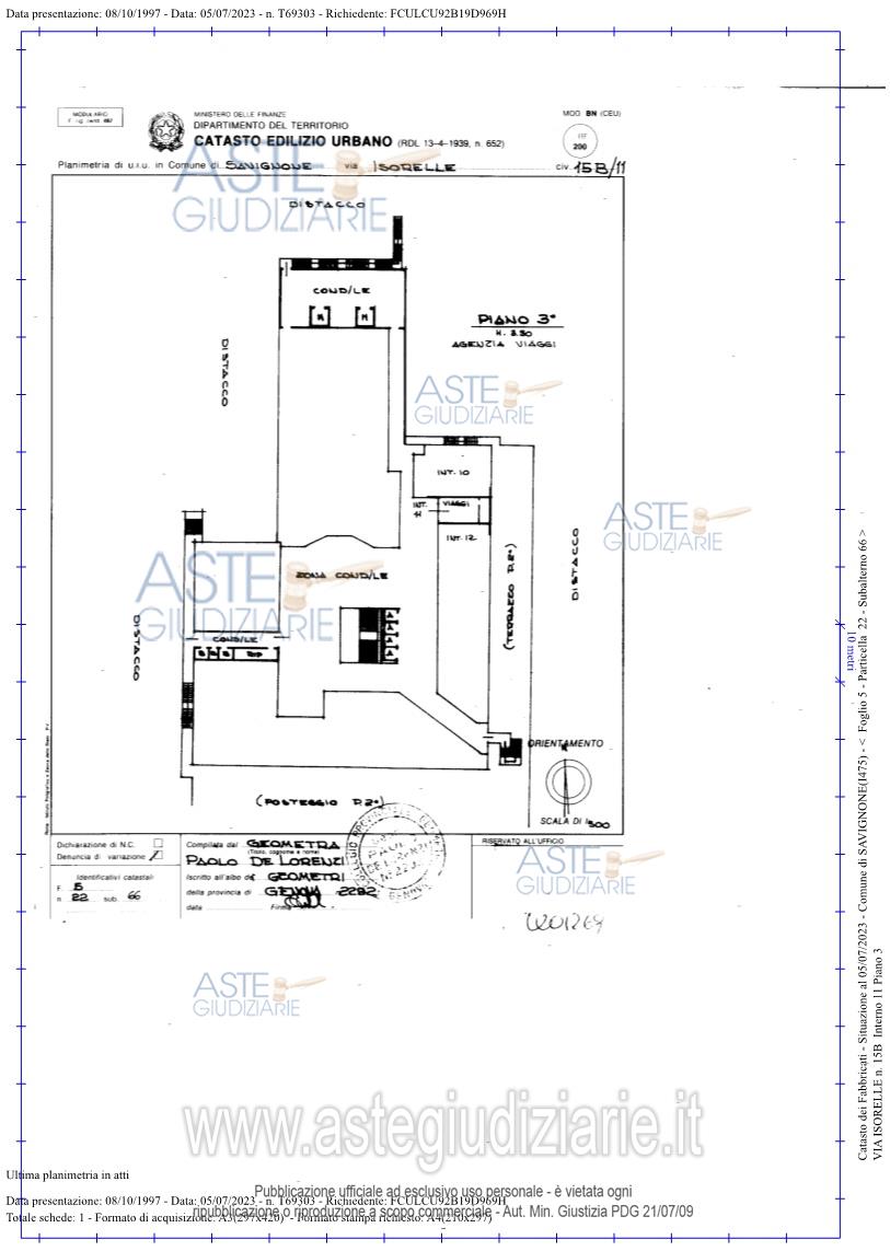
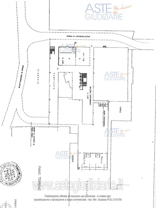
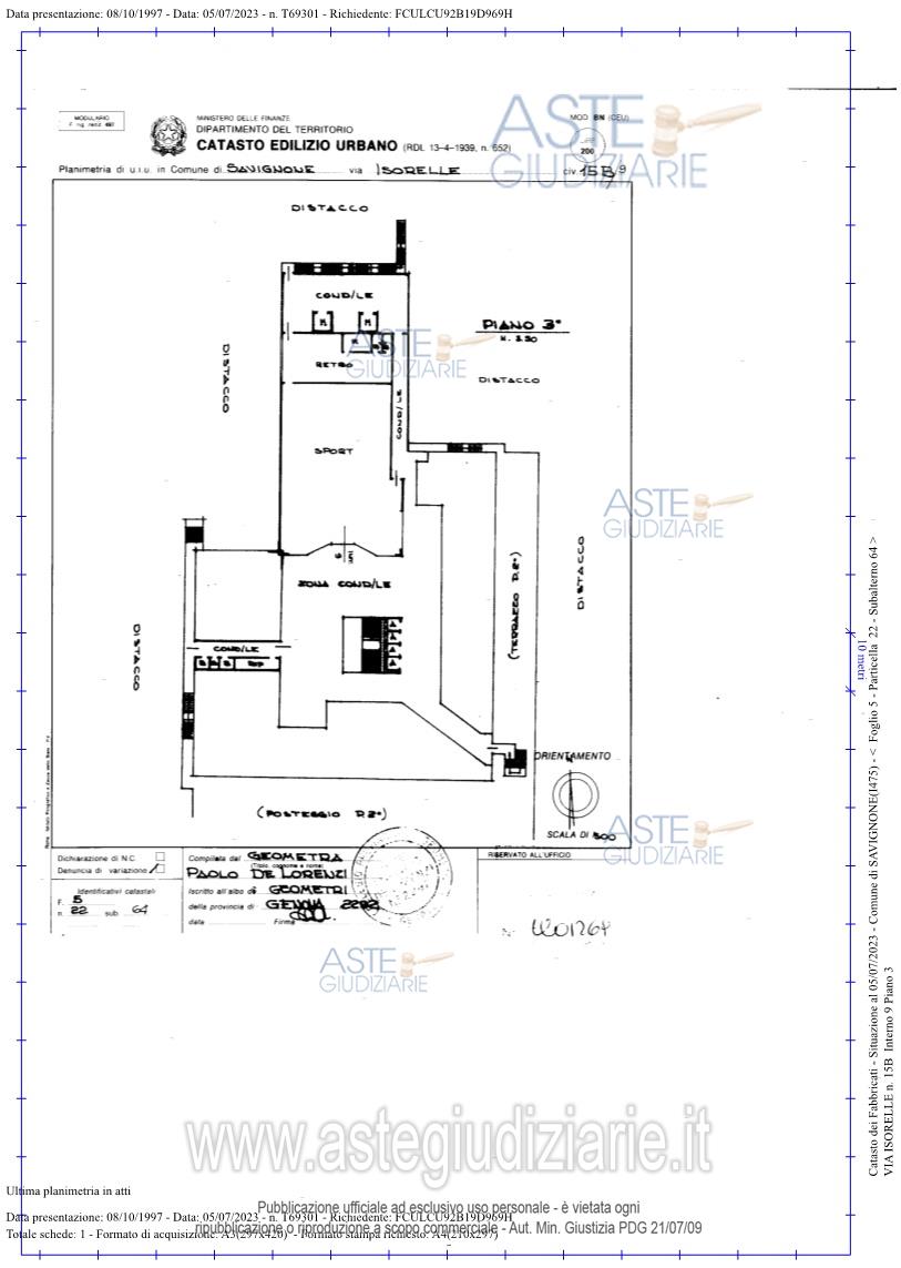
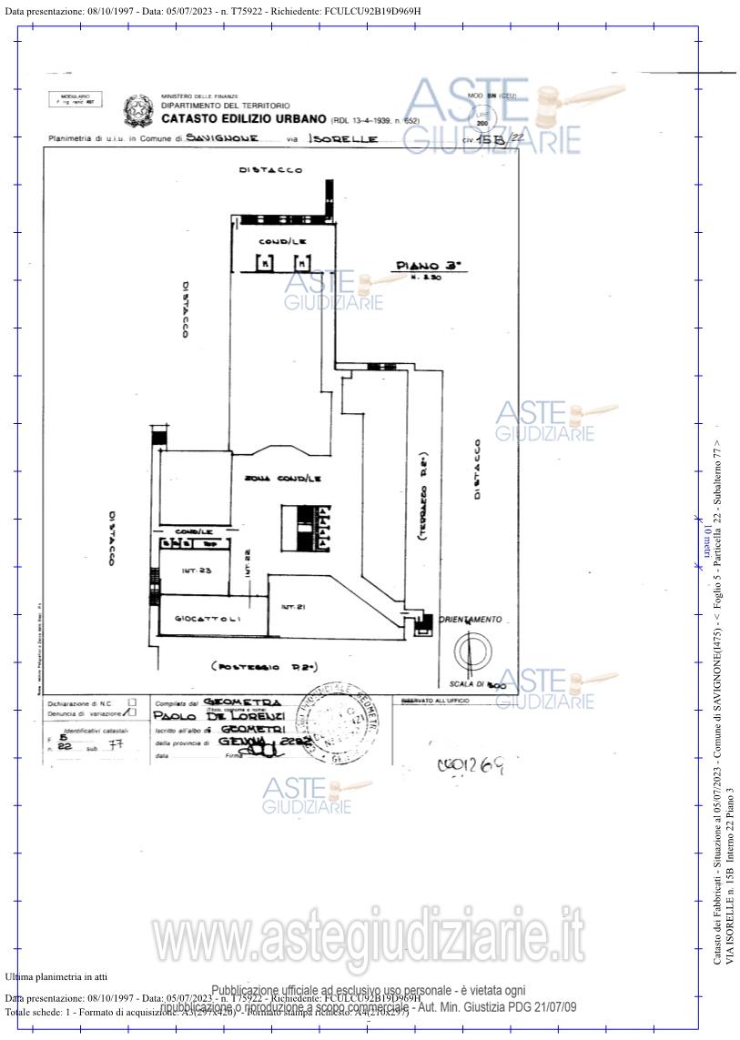
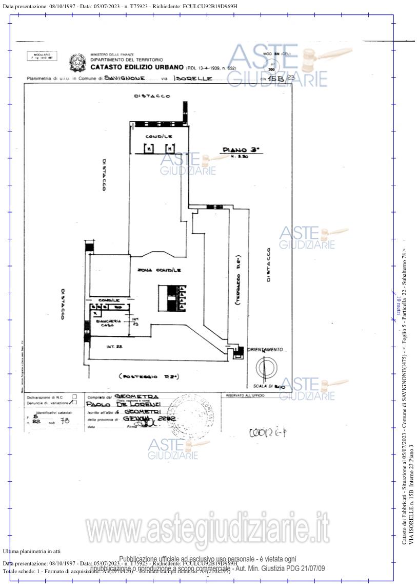
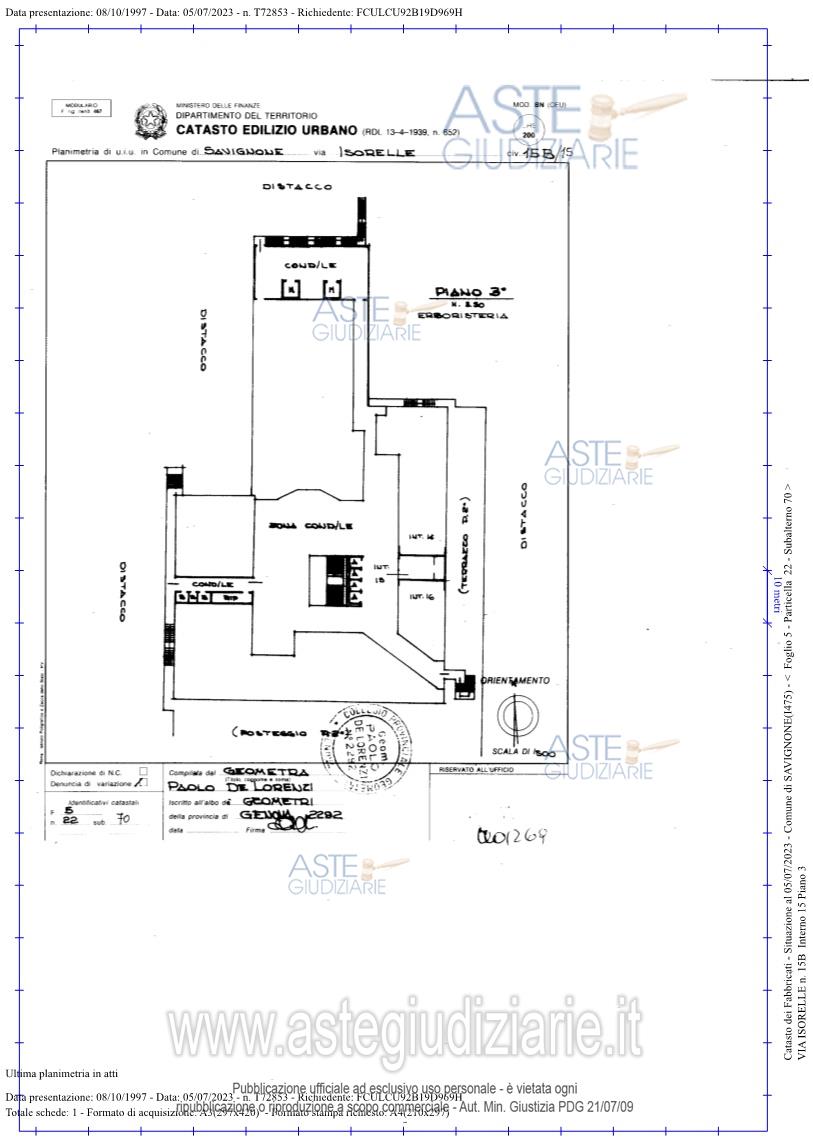
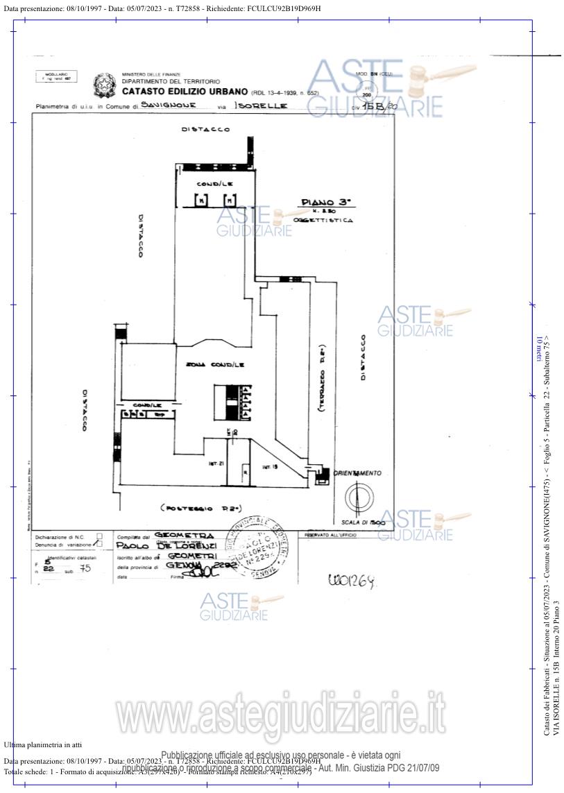
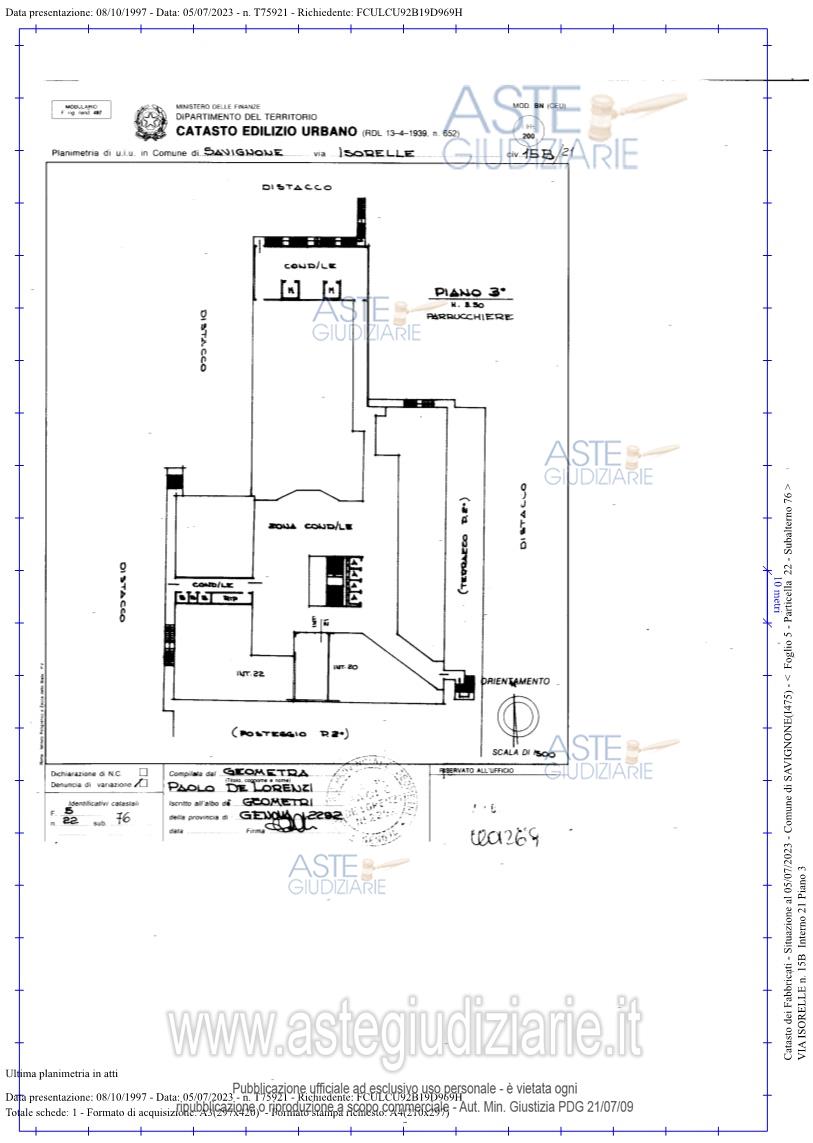
Fabbricato commerciale Via Isorelle, 16010 Isorelle GE, Italia, 16010 Savignone (GE)

6670,00
€ 1.810.800
Vendita all'asta Senza incanto, con gara telematica sincrona mista - LOTTO 3: -Centro Commerciale Vallescrivia Via Isorelle-Savignone (GE);-autorimesse Centro Commerciale Vallescrivia Via Isorelle-Savignone (GE);-terreni pertinenti al canale idrico-incolt. Prezzo base € 1.810.800,00 (offerta minima € 1.358.100,00). Data vendita 03/12/2025 ore 12:00. Curatore Dott. Marcello Pollio - Email "marcello.pollio@bureauplattner.com"; Tel. 010589081. Rif. Tribunale di Genova - Liquidazione giudiziale(cci) n. 14/2022

Superficie 6670,00 mq
Vani
Bagni
Piano

Tipologia di vendita Giudiziaria
Modalità di vendita Sincrona mista
Termine presentazione offerte 01/12/2025 ore 12:00
Data e ora inizio gara 03/12/2025 ore 12:00
Codice ID astegiudiziarie.it 4337820
6670,00
€ 1.810.800

Ti interessa questa vendita?

north_east

Clicca qui per essere indirizzato alla scheda sul sito di provenienza

Bene di astegiudiziarie.it